
地下室管线综合是在原设计图基础上,结合施工现场实际情况,将地下室水、电、暖、消防等专业的管线进行全面综合排布、细化、补充和完善。

目的:
1、提升地下室净高、提高机电设备整体安装管理水平
2、解决在建项目材料周转,减轻车库顶板材料堆场压力
3、解决楼层截水及临水临电永临结合,解决与市政管网的综合关系
4、穿插施工、缩短工期、降低成本、提升品质、助力营销、完美交楼
主要影响因素:
结构梁高:异形结构梁处理方式,车库顶板覆土厚度(0.8m、1.2m、1.5m),柱网间距(12:1),举例子我们的柱间距离目前已开始按照7.8m开始设置。
现场安装管控能力:1、消防管线抢占有利地形先行安装,导致其他专业无法施工;2、风管、水管定位布置不合理,未考虑距墙间距、设置在主车道;3、违反综合管网避让原则;4、消火栓箱安装在车道及车位上
地下车库综合管网(有梁结构)建造体系模型:

合规合理布局、利用水平距离解决竖向高差
做实图纸深化,现场管控落地
布置基本原则:1、小管让大管 2、有压管让无压管 3、一般管道让通风管 4、气体管道让液体管道 5、冷水管让热水管 6、分支管让主干管
住宅类项目综合管网布置优先级:无压管——大管(风管)——强弱电桥架——给水主管——分支管
划分防火分区时,考虑将火势控制在一定的范围内,确保人员安全疏散的同时,防火卷帘沿次梁布置,也是提高净高方法之一。

人防门选型确保满足规范及使用功能的同时,需与地下车库净高要求相匹配,避免人防门选型不当,而导致瓶颈现象发生,人防门选型高度不小于2.2m。

梁柱截面与地下室顶板园林覆土厚度,消防车荷载,柱距等直接关联,梁板结构梁截面高度,是决定机电综合管网及车库净高的重要因素,项目需综合考量。

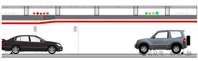
《住宅建筑规范》住宅地下机动车库应符合库内车道净高不 应低于2.2m,车位净高不应低于2.0m。风管应尽量避开主车道设置。

车辆通道处设置于梁底的防火卷帘,受制于防火卷帘卷轴箱 (500mm)已是综合管网的最不利点,其上部穿越水电管线不可取。

水路与电气设备及桥架之间需分路避让,确保电上水下。水管在动力配电柜上方布置,与规范要求相冲突。

室内消火栓的布置应满足同一防火分区有2 支消防水枪的2 股充实水柱同时达到任何部位的要求,消火栓的布置间距不应大于30m,不应设在车道及车位上。

建筑图深化原则:住宅地下室机动车库应符合车道净高不应低于2.20m,车位净高不应低于 2.00m

新开项目地下室层高均在3.4—3.5m,梁高600—800mm

需获取信息:
1、主次梁分色标注
2、核定结构标高
3、用颜色区分结构标高
4、找出结构最不利点










“主风管” 平行主梁敷设


































图纸优化:优先采用BIM技术
人防门选型:人防门选型高度不得低于2.2米
照明灯具安装要点:车道照明安装高度不宜低于2.4m
防火卷帘布置要点:防火卷帘宜尽量避开主梁及结构最不利点,以确保防火卷帘门下方净高满足要求
消火栓布置要点:消火栓布置应避开车位及主车道,并满足以下条件①室内消火栓的布置应满足同一防火 分区有2支消防水枪的2 股充实水柱同时达到任何部位的要求②消火栓的布置间距不应大于30m
防排烟风管安装要点:
1、防排烟风管布置优先考虑避让无压管,并贴梁底安装
2、防排烟风管与梁平行安装时,应预留不小于800mm距离,确保各类管线有足够的翻越空间
3、防排烟风管应尽可能避开车道布置;确保车道净高不低于2.2m、车位净高不低于2.0m
4、宽度大于1.2米的防排烟风管,在车库净高受限的情况下,可调整防排烟管道宽高比的同时
采用局部集热方式,将喷淋设置在防排烟管道两侧安装
5、在地下室层高受限情况下,需保证防排烟管道设计截面积不变,调整风管宽高比,减小风
管高度以满足提升净高的要求(矩形风管的宽高比宜为4:1以下,不应超过10:1)
水、暖管道安装要点:
1、水暖管道不得从防火卷帘门上方穿越
2、管道与桥架交叉安装时,应保证“电上水下”;平行安装时,间距不小于300mm
3、水、暖管道与梁平行安装,应预留不小于500mm距离,确保管线交叉时有足够的空间翻越
4、水、暖管道翻越风管及消防、给排水主管线等管网时不宜采用90°弯上翻
电气线缆桥架、安全指示安装要点:
1、电气桥架严禁从防火卷帘上方穿越
2、电气桥架穿越管道、风管时不宜采用90°弯上翻
3、强弱电桥架平行布置时水平间距不得小于300mm
4、安全指示安装高度不宜小于2400mm并不宜大于2500mm
地下室综合管网应布置合理、排列有序、层次分明、横平竖直、坡向正确
地下室设备房管网及设备布置合理,功能完善,安装规范,满足验收及使用功能