【微分享】绿城机电安装做法图集

2024-02-20
图片
【重磅推出】“散装顾问”服务

转载,供参考

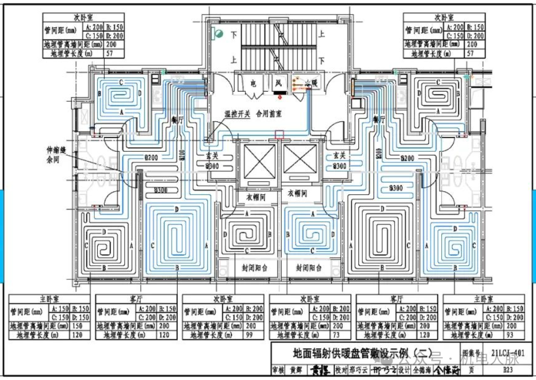
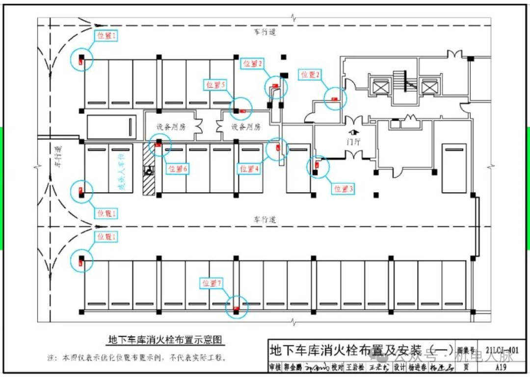
《绿城中国工程做法与常用建筑构造(机电安装篇)》图集 21LCJ-401

图片

图片

图片

图片

图片

图片

图片

图片

图片

图片

图片

图片

图片

图片

图片

图片

图片

图片

图片

图片

图片

图片

图片

图片

图片

图片

图片

图片

图片

图片

图片

图片

图片

图片

图片

图片

图片

图片

图片

图片

图片

图片

图片

图片

图片

图片

图片

图片

图片

图片

图片

图片

图片

图片

图片

图片

图片

图片

图片

图片

图片

图片

图片

图片

图片

图片

图片

图片

图片

图片

图片

图片

图片

图片

图片

图片

图片

图片

图片

图片

图片

图片

图片

下载请点击http://app.mep-link.com.cn/EngineeringDataInfo.aspx?id=3258

版权声明:本文转自地产业务那点事,侵权请联系删除。

图片


阅读135
分享
写评论...