
作者 朱峻
机电人脉原创,转载请注明出处。原文:2021-08-23【微分享】建筑智能照明解决方案:可控硅调光、DALI数字调光还是DMX512调光?(上)
最近负责杭州一个寺庙项目,采用了DALI数字调光智能照明系统。结合以往做过的项目,智能照明解决方案还有采用DMX512调光解决方案,也有采用可控硅调光解决方案的。
今天简单给大家对这三个系统的解决方案做一个介绍,包括系统使用场合、系统优缺点;因智能照明是一个系统性、专业性非常强的门类,这次不对各系统复杂的理论、高深的原理做深入介绍、描述;根据本人的理解把基本的干货做一个简单介绍,如有不对之处,希望大家批评指正。
我们日常接触到的家庭照明灯具控制采用的墙面翘板开关——人为按下开,再按下关——这种是“强电控制强电”模式,而智能照明系统控制最核心的原理就是“弱电来控制强电”;弱电如何控制强电,主要以下几种:
灯具通过可控硅信号调光,电路中输入电压通过可控硅导通角度变化改变有效值,从而实现调光。可以实现灯具缓慢变暗、变亮这种效果;
大概原理:可控硅导通过程中,可控硅电位器中的一个开关可以调节内部电阻的分压比,改变其导通角,进而改变输出电压有效值,实现调光功能。

基于可控硅这种特性,常规的产品中控制灯具的模式可以分为2种,一种就是对灯具“开和关”2个状态进行控制的开关型;一种是通过电压的变化实现灯具由暗至明这样一个过程的调节型,可实现灯具的灯光颜色、亮度调节。
主要由灯具、调光控制器(开关控制器)、网关设备、本地调光面板、调光系统软硬件;同时还有自动感应器如光亮探测器、移动探测器等自动触发等配件、电源模块、交换机等等。
调光最末端被控制的终端。可控硅调光系统的灯具根据调光控制方式不同,灯具的选用也不同。开关型控制方式,末端灯具可采用普通的LED灯具;如果灯具要实现调光、调色;灯具必须采用可控硅调节灯具(这个很重要,否则无法实现调光)。
外观基本是这样的:

调光控制器(或开关控制器)为可控硅调光系统中的比较重要的核心设备,起到承上启下的作用;所有被调光的灯具都接在这个控制器上,控制器上端为强电电源的输入端、下端接调光灯具各个灯具回路,同时控制器各回路灯具状态(开、关或灯光调节)通过控制箱上弱电端子接入的控制信号输入来实现对控制器的控制。
(产品不同,强电输入、灯具回路输出位置可能不相同;为满足消防切非需求,有的产品配有消防信号输入端强制切断电源功能)为了匹配各灯具回路的数量、灯具回路的功率;调光控制器(或开关控制器)一般有6路控制器(可接6个灯具出线回路)、8路控制器(可接8个灯具出线回路)、12路控制器(可接12路灯具出线回路);每个出线回路灯光控制器又有10A,20A来匹配接入灯具的总功率;比如8路10A灯光控制器最大可接入8个灯具控制回路,每个回路电流不能大于10A(2KW),合计可接入16KW的灯具总功率
为组成一个系统,数个接有灯光末端的独立调光控制器(或开光控制器),通过网关等主要设备,把控制器上的弱电接口通过弱电线手拉手,将各调光控制器(开关控制器)连接起来。各个独立的调光控制器通过网关进行数据通讯(RS485、TCP/IP),各灯具的控制信号(弱电控制强电的弱电信号)就是有网络系统传输控制信号的;
外观基本这样的:


<<< 左右滑动见更多 >>>
为了方便随时、灵活本地控制需求,调光系统房间在本地现场位置设有调光面板。调光面板有的采用固定式、有的采用移动式的,主要就是为了方便随时随地控制灯光,通过就地灯光面板预设的固定模式来调节灯光(预设模式可以根据需要随意调整的)。
在项目中控室(弱电室)或值班室等房间将可控硅灯光系统电脑主机设置位置,通过在电脑中安装配套的灯光控制软件系统,可视化监控到每个灯光房间状态、运营时间,设置灯具控制模式等等。系统的功能可根据实际需求进行定制化设计。随着移动互联网的普及,主机系统接入互联网,可使得后期物业管理人员安装手机APP,任一可上网电脑上安装的客户端或网页端接入灯光控制系统。
系统界面可能如下,或其他定制化的要求界面。


为了灯光控制系统能够获得自然环境参数或人员活动参数,系统中还会配有一些传感器,如光亮感应器、移动探测器等等。
比如在某些场所空间需要根据室内或室外环境的亮度变化自动调节空间灯具的亮度,就设置一些光亮感应器探测环境亮度。某些场合需要监测人员的活动情况来自动调节空间内灯光亮度,就设置移动探测器来探测人员活动情况。某些空间的灯具电源等级非220V,就设置36V电源装置接入36V灯具等。类似这样的功能性部件各厂家叫法不一样,但是基本底层逻辑原理是一样的。
可控硅调光原理拓扑图还是比较简单好理解的,基本是这样的
强电部分
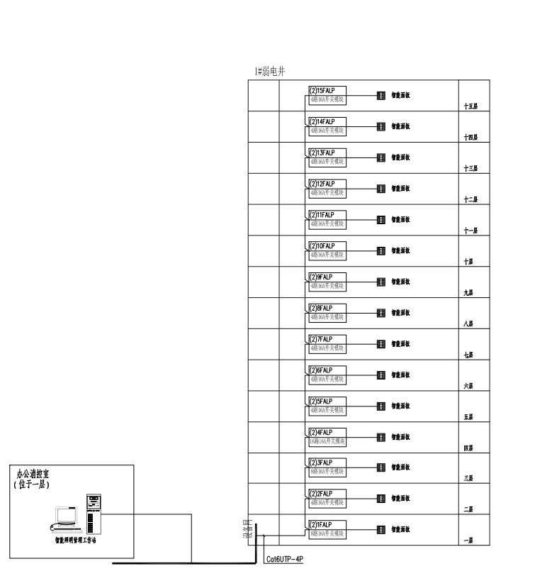
弱电部分实际项目工程图纸是这样表达的:


弱电部分
强电部分工程施工过程中图片:




以上介绍说了那么多,来总结下:可控硅调光其实就是在传统的强电供电电源侧与灯具末端侧中间环境增加了一个中间组件,这个组件(调光控制器、开关控制器)前段接灯具总电源、后段接各回路灯具;各个出现回路的灯具状态由中间组件给灯具提供“行动指令”,中间指令可以要求出线的10个回路,不同组合实现各种不同的亮灯方式,中间组件的“行动指令”信息来自灯光系统软件预设的逻辑。信息由使用方根据实际要求预先编号程序存入系统中。行动指令信息的传递通过各灯光控制器之间手拉手的弱电线路传递。
优势:
1、系统相对比较简单、稳定,可纳入的灯具种类做,如果是开光型系统,市场上几乎大多灯具(LED灯具、白炽灯、灯带、低压灯、卤素灯、日光灯等)都可以计入系统。系统市场占有率高;
2、控制简单、后期使用维护简单。物业管理人员很容易上手使用,不需要很高的专业知识。
缺点:
1、不适用于照明系统很大、需要调光的灯具数量非常多的项目。因可控硅系统调光控制器一般是12回路、每个出线单相回路最大20A,每个调光控制器可计入的灯具数量有限,如果灯具数量有成千上万个,灯光控制器数量、调光面板众多,会导致灯具的出线回路非常过多,工程施工强电布线工程量巨大。
2、可控硅调光系统每个调光控制最小节点是每个回路,无法控制每个灯具。比如1000个灯具,通过调光控制器分25个回路,每个回路40个灯具。调光系统只能对这个25个回路进行逻辑控制,25个回路不同的组合,每个回路的40个灯具是一个整体单元,40个灯要不一起亮、一起灭,一起变亮一起变暗。无法做到对1000个灯具分别进行控制,逻辑控制关系变化种类、数量是有限的。
民用建筑商业、办公、酒店等项目采用可控硅系统一般是没有问题的,项目实际应用案例很多。但如果对调光系统控制要求高,灯光变化多,经常需要个性化调光要求,有没有其他更好的方式呢?当然有,那就是笔者接下来要说的dali数字系统系统。
(未完待续,下期分享DALI数字调光系统等其他调光系统,先喝杯茶歇歇)