
功能设置:
泳池功能布局:

注:本示意图为功能性示意,泳池造型及景点布置需按项目实际情况考虑。
泳池剖面关系图:

泳池形态控制:

一般性规定:
泳池面积:北方地区由于气候原因限制,泳池面积宜控制在600-800㎡。其他地区泳池面积宜控制在1000-1200㎡。
2.泳池的选址应考虑与周边配套结合,以便于后期物业管理。同时在场地中设置更衣室及淋浴间(如有条件,则设备房也可设置于中,或是在偏僻角落)。
3.火爆、高峰时期需设置临时出入口,便于客户进入。销售流线的制订需考虑泳池景点的穿越、体验。
4.中档项目可不设按摩池,高档项目必须设置按摩池。(北方项目可不设按摩池)
5.救生台为成品可移动,高峰时期有效摆放。
6.物业管理泳池的人行流线为:更衣室→淋浴→洗脚池→游泳池。
7.室外泳池深度:深水池1.6-2米;按摩池0.75-0.8米;儿童泳池及嬉水池0.3-0.6米。
8.通往泳池走道中间应设强制通过式浸脚消毒池(池长不小于2m,宽度应与走道相同,深度200mm)。消毒水池每四小时更换一次。
9.休息平台与泳池边界之间,必须设置截水沟,避免雨水、污水进入泳池。
10.面积比:
成人池:占泳池总面积70%(如设置按摩池,则按摩池占5%)
儿童池:占泳池总面积20%;嬉水池(可选):10%。
11.泳池区要求与非泳池区隔离,不容易攀越,便于独立管理。泳池应远离儿童戏沙池、垃圾中转站等易产生异味、灰尘的场所。
12.设计中应考虑泳池换水的再利用。有条件时,可增设连通管道至园区内水景,将泳池换水循环至水景中使用。
13.成人泳池与儿童泳池必须采用分开独立的水循环系统(环保、健康角度)。
14.儿童泳池设计应避免棱角(避开盲区)。
15.儿童泳池选址应考虑靠近泳池入口;避免靠近成人池深水区,如特殊情况下难以实现,则必须设置安全隔离。
16.休息平台宽度≥4500,考虑摆放布品设施(配置休息用品)。
17.在施工图设计阶段,池底图案应有彩色详细大样及材料色彩选型。
18.管线埋地设计的泳池应设柔性套管,以免因为沉降而造成水管破裂和检修不便。泳池管线不宜过多,容易造成池壁漏水。
通用做法:
泳池构造做法:
1.池壁(从外到内)
面层(陶瓷马赛克或瓷片);20厚1:2聚合物水泥砂浆;聚合物水泥基防水涂抹1.0厚;
结构面板一律先清除干净(包括油污,浮浆),蜂窝麻面,用1:2.5水泥砂浆嵌平补实。

2.池底做法 (从上到下)
陶瓷马赛克 (瓷片);20厚1:2聚合物水泥砂浆;
聚合物水泥基防水涂抹1.0厚;
结构面板一律先清除干净(包括油污,浮浆),蜂窝麻面,用1:2.5水泥砂浆嵌平补实。
100厚C10混凝土垫层;素土夯实>92%。

3.游泳池平台做法(从上到下):
面层;30厚1:3干硬性水泥砂浆;
100厚C10混凝土;150厚6%水泥石粉渣;
素土夯实>92%。

4.水下台阶、墙体做法:
面层 (陶瓷马赛克或面砖);20厚1:3聚合物水泥砂浆;砖砌;钢筋混凝土池底。

5.消毒浸脚池池底构造做法:
面层(陶瓷马赛克或面砖);20厚1:3聚合物水泥砂浆;C20钢筋混凝土结构;100厚C10混凝土;150厚6%水泥石粉渣;素土夯实>92%。

6.泳池扶手做法:
材料:拉丝面304不锈钢;尺寸:详图纸。

7.池壁压顶做法(从上到下):
300×300×50磨面黄锈石(黄金麻);
20厚1:3聚合物水泥砂浆;钢筋混凝土结构。

8.泳池池底、池壁转角做法:
泳池台阶、池底、池壁转角处禁止使用切割马赛克的做法。均采取转角马赛克铺贴。
(中档泳池采用马赛克45°斜铺,高档、超高档采用转角马赛克。)

9.水下灯具做法:
泳池结构在土建时需按图纸设计,在水下射灯处局部结构加厚。设计时需考虑灯具接地。
儿童池侧壁灯具安装高度为:灯具中心距地面压顶150mm。

10.泳池种植池/树池饰面:
种植池/树池水面以上饰面为石材,水面以下与池壁统一材料。以花纹瓷砖或马赛克纹理收边为分界。

11.截水沟盖板
中档项目采用成品高分子合成篦子;高档项目采用黄锈石/黄金麻石材篦子;超高档项目可采用砂岩石材篦子。

12.泳池排空管
泳池排空管安装于泳池侧壁,增加泳池美观度,结构设计时需考虑预留。

按摩池设计(土建构造做法同泳池)根据投资额确定是否设置按摩池。
1.水力按摩池水处理设计
宜选用内水型喷嘴。
喷嘴沿池壁布置,应高出座位坐板0.20米,其间距宜为0.7~1.0米,如为矩形池,喷嘴不得相对布置,以保证相互不受干扰。
喷头进气为环境空气时,进气管管口应设调节进气量的控制管帽,且进气口应高出池内水面不小于200mm。
喷头进气为气泵供给时,气泵应高出池内水面不小于200mm。
如气泵应低于池内水面,供气管应设计成倒U字形,且倒U字型管底,应高出池内水面不小于200mm。
2.气泡按摩池水处理设计
池内应设气泡躺席、气泡坐席和池底气泡。
气泡由空气泵制造,其容量根据池内喷头、气床和池底气泡席数量确定。
气床和气席按所带孔数计算。
气泵位置应高处池内水面400mm,如有困难时,供气管应设计成倒U形状,倒U形管底高出池内水面450mm,防止池水回流到气泵系统。
喷气嘴、喷水嘴和供气、供水管道,应采用铜管或薄壁不锈钢管。
人造沙滩泳池(土建构造做法同泳池):
沙滩入水坡度控制在10%以内为宜。
沙滩两侧必须设置隔砂带,水中必须设置截沙沟。
泳池开放期,沙滩至少每月清洁维护一次。

物料选材:

1.泳池物料选材指引
常用基本材料表:


注:以上价格,仅供参考。
2.平面套色布置
泳池池底池壁铺装必须要求设计院提供完整彩色平面布置、套色图纸。

在施工之前必须由材料供应商提供带有颜色编号的实景模拟铺贴图纸,指导精细化施工。

物料施工工程质量标准:
1.池壁内侧面砖:
保证项目、基本项目符合要求,偏差不得大于:
表面平整2mm;立面垂直2mm;阳角方正2mm;接缝平直2mm;接缝高低0.5mm。
2.池底面砖:
保证项目、基本项目符合要求、偏差不得大于:
表面平整2mm;缝格平直3mm;接缝高低差0.5mm;面砖间隙宽度不大于2mm。
3.地面缸砖:
保证项目、基本项目符合要求,偏差不得大于:
表面平整4mm;缝格平直3mm;接缝高低差1.5mm;地砖间隙宽度不大于2mm。
给排水设备:
泳池四周排水系统:
1.泳池延边四周设溢水沟,以保证池水满溢不外流(溢水沟净宽300为宜)。
2.泳池区外边沿设排水沟,以保证平台走道上雨污水收集。
3.平台向排水沟方向设坡1%。
水处理工程:
1.游泳池溢流口及溢流沟设计要求 。
2.沿池壁两侧或周边设置齐岸外溢式溢流水槽。
3.溢流水槽的截面尺寸,宜按池水循环水量10%~15%计算确定,但槽的最小宽度宜为200mm。
4.槽内应设排水口,排水口均匀布置,排水口数量计算确定。
5.槽底应有1%的坡度坡向排水口。

游泳池水处理设计:
1.池水在进行过滤净化前,应先将水中的杂物经过毛发聚集器进行预净化。
2.过滤砂缸应选用强度高,耐腐蚀、滤速高、过滤效果好的产品,并宜安装,操作简便,外型美观,过滤介质一般采用石英砂。
3.为保证泳池的水质质量,应向循环水中投加混凝剂、PH值调整剂和除藻剂等。
4.泳池水必须进行消毒杀菌处理。

泳池水循环系统:

绿化设计:
1.泳池区不宜种植落叶乔木或大量落果类植物。
2.禁止种植带刺及尖锐叶片的植物,以防止意外伤害。
3.泳池区域四周灌木种植要浓密,形成私密空间,方便后期物业管理。
4.不宜种植花期短、花粉易引起过敏的开花植物。
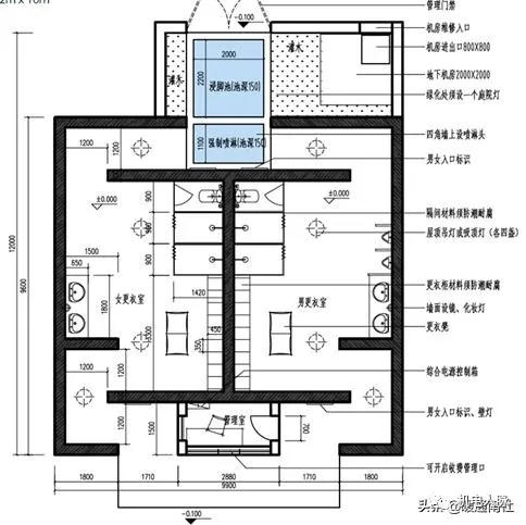
附属用房:
游泳池更衣、淋浴辅助用房:
1.更衣间应设置排水措施。
2.淋浴间应设置冷、热水管道和排水措施。
3.地面必须进行防滑处理。
4.建筑设计时尽可能考虑在会所中设置泳池更衣室,且可与会所洗手间结合设计。

游泳池更衣室设施布置表:

水净化设备用房:
1.尽量靠近游泳池。
2.靠近热源供应方向的一侧。
3.靠近室外排水干管一侧。
4.应有设备安装运输出入口,房间位于室外地面以下时,应留有吊装孔。
5.应有通向游泳池管廊的通道和管沟的出入口。
6.房间高度应满足设备操作和安装的要求。
7.应有良好的通风和照明。
8.地面应有排水措施。
9.根据环境要求采取降噪措施。
10.符合现行《建筑设计防火规范》的要求。
11.设备用房面积要求:面积为600-800㎡泳池40㎡;面积为1000-1200㎡泳池50㎡。
游泳池的循环水量按下式计算:
式中,Q—池水的循环流量
a—管道和过滤设备水容积附加系数,一般为1.1~1.2,取1.1;
V:游泳池的水容积;
T:游泳池水的循环周期,按表规定选取。
表 游泳池水循环周期

安全防护:
1.泳池周边活动区域地面材料必须采取防滑措施,地面、台阶边角打磨,无突出边角和锋利的切面,地面材料应便于冲刷。
2.池岸式溢流水槽盖板格栅条的净间距,如为成人池,不得超过20mm;如为儿童池,不应超过15mm;格栅盖板应采用耐腐蚀和不变形的材料制造,禁止使用不锈钢,不但容易打滑也容易变形。
3.游泳池下池台阶宽度不小于350mm,高度不大于150mm(儿童游泳池台阶高度以100为宜)。台阶应设扶手,扶手可采用.50×3不锈钢管,扶手高度900MM。扶手安装采用预埋件安装。
4.泳池入水台阶必须设置安全提示线。
5.泳池区构筑物以不遮挡安全员视线为宜。
6.泳池四周铺装范围内不得有裸露电线穿越或电源设置。
7.强弱电井、污水井位置不能设于泳池休息平台区域内。
8.泳池全区必须封闭,所有人员只能通过更衣室或专门入口进出。
9.围栏材料和形式可根据设计而定(根据项目特点,新古典风格禁止采用不锈钢材料)。
10.儿童戏水池与成人池之间必须隔开,通道宽度≥1200(如无通道则须设围栏:高度≥900)。
11.淋浴地面应考虑防滑及排水顺畅。
12.台阶应设扶手,扶手可采用.50×3不锈钢管,扶手高度900mm。扶手安装采用预埋件安装,严禁固定在泳池池壁上,以免破换防水层。
13.水下照明灯具只允许用标称电压不超过12的安全超低压供电,其安全电源应设在2区以外的地方。
14.泳池区内强电设备必须设置于2区以外。
施工要点:
结构要点:
1.泳池结构部分设计由建筑设计院完成,而非园林设计单位。
2.天然基础工程,地基为填土层或换填材料均需碾压达到密实度≥94%。单泳池杜绝一部分在地下室顶板上一部分又在天然基础上。
3.泳池侧壁及底板钢筋砼厚度一般情况下考虑150MM,特殊土质考虑200MM,砼垫层厚度均为100MM 。双层双向配筋。配筋¢12以上,根据计算要求。
4.宽度或长度大于60M泳池,结构体需要留设后浇带,收缩缝。
5.池底板及侧壁采用C25UEA补偿混凝土浇捣,池底板布200×400MM密肋梁。
施工工艺要点:
1.基础夯实后要委托工程质量检测中心对压实系数进行检测。压实系数≥94%。
2.池底与侧壁需一次浇注成型,以减少渗漏风险。
3.池侧壁找平粘贴层砂浆厚度严格控制在15MM厚以下,且找平层应该与池结构施工方为一家单位。
4.要求使用正规模板施工侧壁,禁止使用杉木模板。
5.进行结构试水和给排水管试压:结构完成后进行修理,灌满水试验,修补至无渗漏后才做防水;给排水阀门一般在泳池、水景之外,并有一定距离,如在回填后有漏点很难查找,给水管、循环管,排水管施工后分系统进行试压无渗漏后才回填隐蔽,可减少渗漏。
6.游泳池池壁、池底交接处的阴角,台阶的阴角需倒圆角。
构造设计要点:
1.避免泳池结构处于不同的地基上。
2.结构的抗裂措施要结构专业在设计时充分考虑各种不利因素,给予保守的结构设计。
3.少设置水下灯、控制池壁穿孔及管线铺设。
4.各种给排水管开关尽量靠近池边,减少池外管道长度。给排水管用UPVC材料。
5.加强顺流式循环系统管道在侧壁穿越时的构造。