
冷却塔的布置往往需要机电与建筑配合,一方面要满足机电的功能需求,一方面要满足建筑的美观需求,对建筑造型、空调运行、周边建筑都会产生较大的影响。
冷却塔通常有几种布置方案,要考虑美观、能耗、造价、占地面积、噪音等因素,需机电顾问在方案阶段提供分析以决策:
1.设置在塔楼顶部,对美观影响较小。但是高度较高,水泵扬程高能耗大,冷却水管线布置更长,冷水机组冷凝器承压更大,造价更高,冷却水管占塔楼核心筒面积。
徐家汇中心塔楼
徐家汇中心屋顶冷却塔2.设置在裙房顶部,对美观影响较大,在地面可以用肉眼看到冷却塔的范围更大,需用更高的格栅遮挡。对临近楼层建筑有噪音影响,高空噪音传播更远,因此需考虑与周边塔楼的间距以及降噪措施。有白雾产生也比较明显。好处是高度较低,水泵扬程小能耗低,管线与冷水机组造价变低。

苏河湾万象天地项目3.放在地面,对美观影响最大,地铁站的冷却塔就经常布置在地面。冷却塔噪音、排风排热、漂水对行人都会有影响。

但建筑大师们常常不甘于使用常规的的手法来表现,而是另出奇招将设备隐藏,冷却塔就是其中一项重点,有时候会对机电专业提出一些“蛮横”的需求(玩笑话,因为机电专业一般倾向于常规做法,比较省事,突破常规往往意味着烦恼,这可能是机电工程师有时候的第一感受)。
比如MAD在最近的一些项目例如衢州体育场、嘉兴火车站、深圳湾文化广场、安吉文化艺术中心,以及最新的云朵体育中心,都采用了类似的手法,将冷却塔隐藏在建筑之中,或者通过地景设计手法消隐设备体量。
云朵体育中心项目,MAD为解决片区地下通风设置的数座冷却塔造成的近5200立方米的地面视线遮挡空间,反而将冷却塔放在了最醒目的位置,“大隐隐于市”,巧妙地将冷却塔抬升至二层,并环绕冷却塔设计了空中活动层。一层屋顶从四个方向延伸至公园界面并局部覆以绿植,与城市自然相接,形成立体的绿洲。



建筑二三层的外表皮采用了带有金属质感涂层的ETFE膜材。通过膜材对周边环境的反射,建筑体量大幅消隐,也解决了冷却塔阻挡视线的问题。


深圳湾文化广场项目,则是将冷却塔藏在景观地形“之下”,其实还是在建筑内部。并在冷却塔藏身处的进风百叶与出风百叶设置消声器,削减噪音对周边环境的影响。


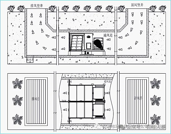
此外还有案例使用鼓风式冷却塔,将其隐藏于地下。相对于传统的横流式冷却塔,鼓风式冷却塔可以完全放置在地下,只需要设置相应的送、排风口即可。并且可以在风道中设置消声降噪措施,解决噪音问题。
缺点是要有足够的通风量来进行散热,需增加土建风道的面积或设置独立的送排风道,土建投资将会增加。需要克服风道阻力,因此其耗电量高于传统冷却塔。比如一个6列编组的标准车站冷却塔需要配用15kW电机,选用鼓风式冷却塔则需要配备60kW电机。价格比传统冷却塔要高,建设成本将会增加。


当然冷却塔也不能任由建筑摆布,影响散热效果就不好了。我们暖通也要向建筑提出要求,保证足够的进出风面积,明确冷却塔距离墙面的距离、百叶的通风率等需求。有条件的话最好做个CFD模拟看看冷却塔的回流率。


如果进风口面对墙壁,则与墙壁的间距应该满足厂家推荐值。



井式安装保证进风面与墙之间留有足够的距离,下降风速应该小于 2m/s,只有低于2m/s才能够避免回流的问题,满足进风面与墙之间的距离d的要求,风口最好要高于或平行于地面。


有格栅的话,百叶墙必须有50%以上的通风率,如核算的下沉风速不能够满足低于2m/s时,我们需要核算格栅的进风风速,通过格栅的风速应该小于3m/s,塔进风口和百叶墙之间的距离至少为1m.

