
机电人脉公众号首次发表于2021-10-19:【微分享】地下室施工图设计超全总结
在设计初期,必须把地上、地下统一考虑,要尽可能把车库集中在一个整体空间中,以提高相同面积下的停车数量。
一种方法是,把地上住宅沿地块外围布置,就是“围合式布局”,社区中部形成比较开阔的园林空间,下面做停车。
另外一种方法,把住宅楼多栋组合,提高小区空地的完整性。从而有利地下停车库空间的完整性,对于大盘而言,有时地下停车库被分割成几个片区,这时还要考虑各区之间的连接通畅,不应产生瓶颈现象,从而对交通、消防不利。




转弯半径:
误将国家规定的汽车的最小转弯半径6米,理解为是车道的最小内径,导致车道的内径过大,相应的增加车库面积。
(注:汽车最小转弯半径是指:汽车回转时汽车的前轮外侧循圆曲线行走轨迹的半径)
“汽车的最小转弯半径”与车道内径的关系详下图所示。

解决措施:
根据《汽车库建筑设计规范》4.4.10条的计算公式,计算得出:
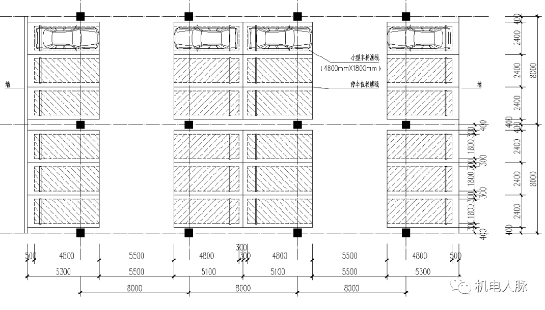
车库汽车环行道的最小内径:一般取3.9-4.2米即可。此数据要牢记。

一般情况下,地下车库每个停车位面积为27--35平米,设人防地下车库也仅为为40平米/每车位
平行式停车方式

斜列式停车方式
垂直式



我们一般控制通风+桥架共用400高度空间,他们同样需要避让,减少交叉。风管与喷淋在一般情况下是不叠加,但当主风管的宽度≥1200㎜时,其风管底部必须设有喷淋口,这时就必须叠加计算。
地下室柱网的尺寸对车库而言,大约在8.0m左右,梁高度一般控制在800~900mm高度。


并且要求设计院做好管线综合,注意遵循如下原则:
1)应尽量使“主风道” 靠近车道边侧设置
2)风道宽度尽量控制在1.2米以内,使风道下面不设喷淋(注:国家规范规定,宽度≥1.2米的风道下应设喷淋)

3)电桥架、设备管线尽量与风道平行设置、不设在风道下方
4)各类管线交叉点不要设在主车道处


两个汽车疏散出口之间的间距不应小于10m
大型高层建筑的地下车库往往规模较大,为了将火势控制在发生范围内,避免向外蔓延,需将地下车库按一定面积划分为防火分区。
地下车库不设自动灭火系统时,其防火分区最大建筑面积为2000 ㎡,设有自动灭火系统时,其防火分区最大建筑面积可增加一倍,为4000㎡。
各防火分区以防火墙进行分隔,当必须在防火墙上开设门、窗、洞口时,应设置甲级防火门、窗或耐火极限不低于3.00h的防火卷帘。
需注意防火卷帘的安装方式,若装在梁下需要保证此处净高。
首先理解两个名词解释。
1)安全出口:疏散楼梯或直通室外的出口。
2)疏散出口:用于人员疏散出某一区域的出口。
1,地下汽车库的人员安全出口和汽车疏散出口应分开设置。汽车坡道不可作为人员疏散出口。但是自行车坡道可以作为人员安全出口。
2,地下车库每个防火分区内的人员安全出口不应少于两个(停车位≤50辆的Ⅳ类汽车库,或同一时间的人数不超过25人的汽车库可只设一个安全出口)。
3,地下车库的室内疏散楼梯应为封闭楼梯间,当楼梯间不能直接自然采光和通风时,应设成防烟楼梯间。防烟楼梯间门及前室门均为乙级防火门,封闭楼梯间门也是乙级防火门。
4,疏散楼梯的梯段净宽不应小于1.1米。
5,地下汽车库室内最远工作地点至楼梯间的不应超过45米,当设置自动灭火系统时,其距离不应超过60米,单层或设在建筑物首层的汽车库,室内最远工作地点至室外出口的距离不应超过60m(注意,疏散距离是楼梯间,不是疏散出口,我们这个距离不能到防火墙上门为止,而是楼梯间或前室的门,有时到前室的门超过60米,可以把前室扩大来满足60米的距离);
(注意,疏散距离是楼梯间,不是疏散出口,我们这个距离不能到防火墙上门为止,而是楼梯间或前室的门,有时到前室的门超过60米,可以把前室扩大来满足60米的距离)
如果是设备房或自行车库的防火分区内疏散距离不应超过40米,位于袋形走道两侧或尽端的疏散门至最近安全出口距离不应超过22米。

通风
1)自然通风
当汽车库开窗面积≥车库面积的**2%**时,汽车库可采用自然通风。
2)机械通风
不满足自然通风条件的车库应设机械通风,主要有以下形式:
A、机械排风、自然进风(地上、半地下、地下一层)
B、机械送、排风(地下二层及以下)
C、诱导通风
排烟
1)自然排烟
A、地上车库、半地下车库、面积小于2000平方米(建筑面积)的地下车库可采用自然排烟。
B、自然排烟条件:自然排烟口面积(有效开窗面积、有效百叶面积)不小于该车库面积的2%,且距该防烟分区最远点的水平距离不大于30m。
2)机械排烟
A、面积超过2000平方米(建筑面积)的地下车库应采用机械排烟。
B、面积较大的地上汽车库及半地下车库,自然排烟口距该防烟分区最远点的水平距离超过30m时,不满足自然排烟距离的区域应设置机械排烟。
排烟与排风一般合设、补风与送风一般合设
设机械排烟的汽车库应划分防烟分区,每个防烟分区的建筑面积不宜超过2000平方米,且防烟分区不应跨越防火分区,所以一般一个防火分区会设两个排风兼排烟机房。送风兼补风机房可一个防火分区设一个。
机房及风井的设置
1)机房的设置原则
a、尽量布置在其所服务的防火分区内
b、尽量布置在其服务区域的中间,让支路尽量的短
c、多层地下车库尽量让上下层相同性质的机房在同一位置
2)风井及百叶的设置
A、风井的设置
井道最小边不宜小于600mm,开洞最小边不宜小于400mm
自然补风井距其服务的防火分区最远点不宜小于60m(按排烟补风考虑)
B、百叶(风口)的设置
进风口应设在室外空气较清洁的地方,且在排风口的上风侧;当进、排风口在同侧时,排风口宜高于进风口6m,进排风口在同侧同一高度时,其水平距离不宜小于10m;进、排风口的底部距离室外地面不宜小于2m,若设于绿化带内不宜小于1m
进、排风百叶(同时使用的进、排风百叶)可通过不同朝向的开启、转角等措施解决。
进、排风井不宜设于影响外立面、主要行人通道处,不建议与卧室、书房、客厅(人长期停留的房间)贴墙设置。

一)电气房间(高压配电房、低压配电房、开关站、弱电机房)、柴油发电机房、水设备用房(水箱间、水泵房)、物管用房、库房宜分别设置(对房间布置有一定的影响)
二)电气房间排风应直接排至室外,进风宜直接从室外进风、也可从车库进风;宜设机房。
三)柴油发电机房进排风井均会做消声处理,故风井会比较大;柴油发电机烟气应升至屋面高空排放,也可由硝烟池处理后于一层排放(不推荐使用)。
四)水设备用房排风应直接排至室外,进风宜直接从室外进风、也可从车库进风;宜设机房。
五)物管用房排风宜直接排至室外、也可排至车库,进风应直接从室外进风;宜设机房。
六)库房宜直接从室外进、排风,也可从车库进排风;宜设机房。
七)物管用房、库房、内走道的排烟
地下单个房间面积大于50平方米和总面积大于200平方米的甲乙丙丁类库房、物管用房及其走道,或其他区域疏散走道超20m长者,应设排烟措施。
有条件采用自然排烟的尽量采用自然排烟,自然排烟条件:自然排烟口面积(有效开窗面积、有效百叶面积)不小于该房间面积的2%,且距最远点的水平距离不大于30m。
八)几点建议
地下一层,若有走道与房间相连的,可将补风补至走道,其余房间从走道补风
设备用房宜集中布置,不宜布置的太零散
1、柴油机发电机房接近负荷中心(最远端距离不宜大于150m)或靠近大容量用电设备处,宜靠近一级负荷或变配电室,考虑进出线方便。
2、不应设在厨房、卫生间等经常积水场所的正下方或贴邻。尽量布置在上部有架空层的位置,避免与居室贴临,若正上方为住宅、客房、办公室等场所时,配电房应作屏蔽处理。配电房尽可能布置在不能停车的位置。
3、不宜在火灾危险性大的场所正下方或正上方,贴邻时其隔墙的耐火等级应为一级, 应设置外开的甲级防火门。
4、应布置在地下一、二层,应采用耐火极限不小于2小时的隔墙和1.5小时的楼板与其它部分隔开,门应为甲级防火门。不应布置在地下三层及以下。
设备用房设有防火隔墙及甲级防火门与其他部位分开,我们可视为是一个独立的防火分区,其安全出口的数量应为两个,一个应直通安全出口,一个可以跨越另一个防火分区;
当每个房间面积≥60平方米时,内部点到门的距离≥15m时,应设两个出口;
高压配电室当其长度大于7.0m时,应设两个出口,并宜布置在配电室两端。当长度大于60m时,宜增加一个出口;

配电控制室一般应设一个通向室外的出口;低压配电室长度>8.0m时,配电、控制室均应设两个出口;低压配电装置两个出口间距离超过15米时,应增加出口。
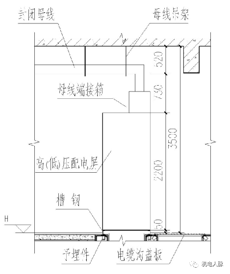
低压配电房竖向布置图规范要求,高、低压配电房梁底净高不小于3.5米
某工程柴油柴发电机房的布置图1.水泵房
水泵房分为生活水泵房和消防水泵房,水泵房宜设在小区的中心区域,宜布置在地下一、二层。
2.生活水泵房和生活水箱间
生活水泵房不能布置在卫生间等生活用房下方。生活水箱间,应与生活水泵房毗邻设置。
3. 消防水泵房
消防水泵房当设地下室或其它楼层时,其出口应直通安全出口(即直通楼梯出入口的走道长度≤5m),当设在首层时,其出口宜直通室外。
4.消防控制室
消防控制室,宜设在建筑的首层或地下一层,当设在地下一层时,其出口应直通安全出口(即直通楼梯出入口的走道长度≤5m),当设在首层时,其出口宜直通室外。
5.消防水池
消防水池的用水量是根据整个基地内用水量最大的一栋建筑来计算的,当总容量超过500m³时,应分成两个能独立使用的消防水池,水池池底最深处距室外地平高度不超过6.00m,供消防车取水的消防水池应设取水口,或取水中,取水口或取水中与建筑外墙距离不宜小于5.00,且不宜大于100m。

