
作者 朱峻 原文发表于2021-10-28:【微分享】浅谈住宅建筑中各种形式的地暖系统
作者授权发布,转载请注明出处
在经济社会不断发展的今天,人们对居住环境的舒适度要求也在不断提高;其中舒适度比较高的地暖系统在我国许多城市的住宅建筑内已经逐渐成为标准配置,今天笔者结合自身的工作经历介绍住宅常用的地暖形式,着重介绍下浙江区域最近几年开始流行的空气源热泵“两联供”三管合一的毛细管地暖(制冷)系统。
市场上常见采用燃气壁挂炉作为地暖系统的热源,是大温差(10度以上)、小流量地暖辐射换热系统。
常采用PERTφ20管,盘管间距采用大间距(15CM-20M)的铺设方式。系统由燃气壁挂炉、分集水器(每回路设置电动阀调温)、温控面板等组成的系统。
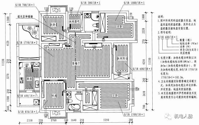
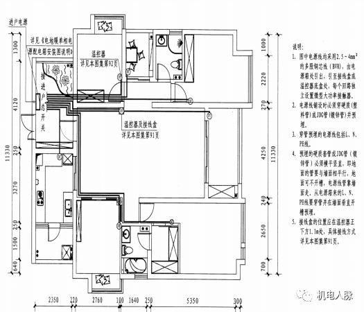
图纸设计一般为如下图所示:


实际工程图片这样的:



这种“湿式水地暖”在市场上最普遍,也最成熟、价格低,结构包括住宅地面上设置的绝热层(2CM厚度左右)、豆石混凝土填充层(厚度5CM左右)或水泥砂浆填充层(厚度7cm左右)、找平层、装饰层。
这种地暖的优点在于面层装饰材料灵活、可以为铺砖、实木复合地板等各种形式,不受限;最大的缺点就是地暖地面层厚度大(总厚度在10-12cm)左右,一般建筑需要提前考虑地暖占用的厚度,确保室内净高。否则在后期改造增加中,这类地暖容易出现原有建筑入户门门槛、阳台推拉门门槛设置地暖的尴尬情况。
在夏季,室内制冷设置分体空调或中央空调系统,保证住宅户内居住环境的舒适度;地暖系统环境温度不干燥,符合中医“暖从脚下生、温足而凉顶”中医理论。比空调系统制热人体感受舒服的原因,相信大家都很清楚,就不多介绍了。
预制沟槽板地暖(干式水地暖、蘑菇板地暖)原理、系统组成与湿式水地暖是一样的,也是采用的PERTφ20管,盘管间距在15CM-20M铺设方式的辐射换热系统;采用燃气壁挂锅作为热源的大温差(10度以上)、小流量地暖系统。
主要由于蘑菇板地暖将传统保温材料集成到一起,是用树脂、橡胶、泡沫砼、轻质粉煤灰、珍珠岩等材料合成的复合型板块,或用塑料制作成一定规格的模块板,板块表面预制管凹槽、榫舌等,有的还可配金属导热板。
工程设计图纸一般是如下这样的:


实际工程施工图片是这样的:


这种地暖和一般的传统地暖相比,具有运输方便、拼装便捷、损耗低、不用卡钉、不破坏保温层的、操作简单、一人便可安装的特点;蘑菇板+地暖管的总厚度很低,在3.5cm左右;这种蘑菇板一般分为不带金属均热层(均热层:金属导热层)和带金属均热层;不带金属均热层适合面层铺设地砖,带金属均热层主要面层为铺设木地板。

这类地暖一般在预制沟槽板上(蘑菇板上)直接铺装木地板比较多,无需回填层湿作业(常见采用铝片金属均热层代替湿作业的水暖砂浆回填层),这也是大家喜欢叫“干式地暖”的原因。因施工周期短、安装便捷、安装高度低,对结构荷载低等特点,还是不少用户选择此类地暖。
但是这种地暖相对于水地暖价格更高、升温快、降温也快,需要长时间开启、蓄热性差等缺点,绝大都数还是比较青睐湿式水地暖(价格低、技术成熟、蓄热性好、面层装饰材料选择多。)
以供电电能为能源,通过铺设间距为10cm左右的加热电缆为加热元件的辐射供热地暖,包括混凝土填充式(蓄热式)和预制沟槽式(快速式)两种,鉴于面层装饰材料不同,配置散热措施等。
图纸设计一般为如下图所示:





实际工程施工图片是这样的;


电地暖因用电量大(发热电缆一米10-15W左右)、用户原始用电量容量小(住宅户内一般为12KW单相或12KW三相为主),需要增容,使用成本高、安装要求高。这类地暖使用的群体比较少。
但因电地暖地面厚度小,也有一些不差钱的用户采用此地暖。
笔者在2010年负责的一个高档住宅项目(建面普遍在200平方左右)遇到这样一个客户(户内供电为三相供电,5x16的进户电缆),笔者起初是不知道有用户采用这类地暖,供电局抄表的班长联系我,说小区有一户用电量异常,1个月电费在5000多元,怀疑电表有问题,怕业主投诉,偷偷更换了一个新的电表,结果第二个月电费还是5000多元,很是疑惑,后来主动联系到业主才知道,说他们家因建筑层高只有2.9米高,为了确保户内净高,安装了电地暖。这样的高能耗相信一般家庭业主是承担不起的。
与锅炉热源的地暖系统采用的大温差(温差达到10度以上甚至20度)、小流量不同,空气能热泵“两联供”三管合一的毛细管地暖(制冷)系统采用小温差(5度温差)大流量系统。
为了实现小温差系统,需要缩小地暖管的铺设间距实现,间距为5-6CM。主流的PERTφ20因规范要求弯曲半径大于管径的8-10要求,否则容易出现瘪管,所以φ20最小铺装间距只能为16CM间距,间距太大无法满足小温差要求。
要达到小温差这个要求,只能采用φ10、φ12小管实现小间距铺设,但φ10、φ12管无法满足大流量要求,为了解决大流量要求,从而采用了三管合一(3根φ10或3根φ12)做为一个回路接入三管合一的分集水器(这个系统很重要部件)。因采用φ10、φ12管,类似毛细管一样,大家喜欢称这种地暖为,毛细管地暖系统。
空气源热泵、储热水箱、循环水泵、三合一分集水器、预制沟槽板(蘑菇板),φ12小管、温控器、控制系统等组成。
系统示意图如下:

三管合一分集水器:每个回路接的是3根φ12管

小间距实际铺设如下:




浙江为夏热冬冷地区,夏季高温高湿、冬季阴冷潮湿但环境温度并不最太低,气候特征比较适合空气源热泵地暖-空调两联供系统;且浙江相对富裕,居民对冷暖舒适度要求高,同时因西气东输管网未到浙江,天气热价格相对比较高;因传统燃气锅炉地暖用气量大,第三阶段燃气价格如杭州为4.65元接近5元每立方。
通过2个系统计算测算对比:
拿杭州120平方的房子为例,一个系统采用燃气锅炉系统作为热源地暖系统、一个采用空气源热泵作为热源系统;都运行24小时;
杭州民用电费价格:平均价格:0.7元/度(按累计电量4801度算),燃气第三梯度价格:480立方以上4.65元/度

选1月份最冷的月测算,24小时全开状态,室内供暖平均温度22度;
A:采用燃气壁挂炉地暖1个月用气量在520立方(每小时0.6立方燃气,立方);
地暖燃气使用费用元元
B:采用热泵地暖一个月电费为892度电(每小时1.1度电,度)
地暖用电费用元元;
结论:燃气地暖费用接近热泵地暖费用的4倍(2418/624)
随着热泵技术成熟、普及,与传统的燃气锅炉只能制热水不能制冷水,地暖选择了热泵,热泵不但能制热水,也能制冷水,实现了地暖既能供暖又能制冷,热泵两联供的发展势如破竹,越来越普及。
空气能热泵“两联供”三管合一的毛细管地暖(制冷)系统,鉴于毛细管地暖的特点,铺设间距小(小温差的独特性),毛细管地暖系统散热效果高,该系统具有“低温供暖、高温供冷”特色。
采用φ12管间距6cm的毛细管,夏天供冷时,系统循环水温度只需20度,比传统采用地暖制冷系统温度16度提高。因系统为小温差、毛细管小间距散热面积大散热效率高特点,夏天制冷系统循环水温度只需20度即可实现了高温供冷,这最大的利好就是避免了地面结露的风险,同时实现不出现地面制冷脚冷的现象了。
几年前很多采用φ20 间距16cm的大温差热泵系统为了制冷,系统循环水温度只能采用16度,导致室内地面结露,无法使用。同理冬天供暖,因毛细管间距小、散热效率高,冬天采暖系统温度只需35度供暖,实现了低温供暖。这低温供暖的特性,结合空气能热泵特点(按常规的45度供暖,查相关资料若出水温度提高1度COP值降低3%,出水温度降低1度,COP提高3%,采用35度供暖,空气能COP提高30%左右),这就是为何该系统如此节能、运行费用低的原因。
极寒温度如零下10时,出水温度可达到30度满足地暖运行要求;传统的需要45度热水地暖系统是在最需要地暖的时候,系统无法使用。
鉴于地暖系统起热、起冷慢的特性,将系统原理进行升级,采用出水调整为二次系统接入风机盘管水系统,俗称“天水地水”系统。实现快速制冷特点。这种模式越来受用户青睐,一套系统解决制冷、制热起热、起冷快的要求。比市场上单独中央空调+单独燃气锅炉的,“天氟地水系统”更节能、省运营费用、省投资费用。
特别注意:增加风机盘管后,不能直接接入地暖环路系统,需要独立设置风盘环路系统,否则风盘会出现与地暖系统“抢水抢热”导致系统效果差。二次系统:除热泵主机到水箱设置循环水泵的一次系统外;储热水箱与地暖系统设置独立循环环路水泵,储热水箱到风盘之间设置独立循环环路水泵作为二次系统;这个非常重要。
从陕西咸阳机场、武汉的天河机场、成都双流机场、青岛流亭机场、北京大兴机场都采用的地面制冷、制热运用案例看,层高几十米的大空间,只需处理2米范围的制冷制热,采用地面制冷制热是非常节能的。对应层高很高的建筑、就酒店大堂、体育馆等,采用地面制冷制热是比较适合又节能的系统。
