
重庆市住建委发布的《建设工程消防设计常见错误(2024年3月版)》,算是一个案例集,配了规范依据与图纸,可供参考。

3 给排水
3.0.1 高压和临时高压消防给水系统工作压力错误。
依据:《消防设施通用规范》GB 55036-2022第3.0.2条高压和临时高压消防给水系统的系统工作压力应符合下列规定:
1 对于采用高位消防水池、水塔供水的高压消防给水系统,应为高位消防水池、水塔的最大静压;
2 对于采用市政给水管网直接供水的高压消防给水系统,应根据市政给水管网的工作压力确定;
3 对于采用高位消防水箱稳压的临时高压消防给水系统,应为消防水泵零流量时的压力与消防水泵吸水口的最大静压之和;
4 对于采用稳压泵稳压的临时高压消防给水系统,应为消防水泵零流量时的水压与消防水泵吸水口的最大静压之和、稳压泵在维持消防给水系统压力时的压力两者的较大值。
案例:某高层建筑临时高压的室内消火栓系统采用设置于消防泵房内的稳压设备稳压。稳压泵维持系统压力时的压力值为1.25MPa,消防水泵零流量时的压力与消防水泵吸水口最大静压之和为1.65MPa。设计以1.25MPa作为室内消火栓系统工作压力,错误选定室内消火栓管道、管道附件及阀门的压力等级。
3.0.2 消防水池取水口距离消防车到达的路边超过2m。
依据:《建筑设计防火规范》GB 50016-2014(2018年版)第7.1.7条 供消防车取水的天然水源和消防水池应设置消防车道。消防车道的边缘距离取水点不宜大于2m。
案例:某小区消防水池顶板开设0.8m×0.8m取水口,受水池外墙位置限制,取水口距离车道边缘约3.2m。
3.0.3 消防水泵房地坪不高于消防水泵房外地坪时未设置挡水门槛。
依据:《消防给水及消火栓系统技术规范》GB 50974-2014第5.5.14条 消防水泵房应采取防水淹没的技术措施;《建筑防火通用规范》GB 55037-2022第4.1.7条第6款 消防水泵房应采取防水淹等的措施。
案例:某建筑消防水泵房地坪与消防水泵房外的地坪处于相同高程,但消防水泵房门洞处未设置挡水门槛。
3.0.4 地下室消防水泵房设有挡水门槛,但未设置独立的排水设施。
依据:《建筑防火通用规范》GB 55037-2022第4.1.7条第6款 消防水泵房应采取防水淹等的措施。
案例:某学校负一层消防水泵房仅设挡水门槛,但未设置独立的排水设施,泵房内排水沟接至泵房外集水坑,存在淹没风险。

3.0.5 消防水泵吸水口的淹没深度不满足消防水泵在最低水位运行安全的要求。
依据:《消防给水及消火栓系统技术规范》GB 50974-2014第5.1.13条第4款 消防水泵吸水口的淹没深度应满足消防水泵在最低水位运行安全的要求,吸水管喇叭口在消防水池最低有效水位下的淹没深度应根据吸水管喇叭口的水流速度和水力条件确定,但不应小于600mm,当采用旋流防止器时,淹没深度不应小于200mm;《消防设施通用规范》GB 55036-2022第3.0.8条第3款 消防水池的出水管应保证消防水池有效容积内的水能被全部利用,水池的最低有效水位或消防水泵吸水口的淹没深度应满足消防水泵在最低水位运行安全和实现设计出水量的要求。
案例:某居住小区消防水池及泵房详图中,消防水泵的吸水管喇叭口在消防水池最低有效水位下的淹没深度仅为500mm,不满足消防水泵在最低水位运行安全的要求。

3.0.6 消防水池溢流管与排水设施直接相连。
依据:《消防给水及消火栓系统技术规范》GB 50974-2014第4.3.9条第3款 消防水池应设置溢流水管和排水设施,并应采用间接排水;《消防设施通用规范》GB 55036-2022第3.0.8条第5款 消防水池应设置溢流水管和排水设施,并应采用间接排水。
案例:某项目消防水池溢流管与排水设施直接相连,未采用间接排水方式。
3.0.7 应设置消防水泵接合器的室内消防给水系统,在给排水总平面图、单体平面图及消防给水系统图均未表达消防水泵接合器。
依据:《建筑防火通用规范》GB 55037-2022第8.1.12条 下列建筑应设置与室内消火栓等水灭火系统供水管网直接连接的消防水泵接合器,且消防水泵接合器应位于室外便于消防车向室内消防给水管网安全供水的位置:
1 设置自动喷水、水喷雾、泡沫或固定消防炮灭火系统的建筑;
2 6层及以上并设置室内消火栓系统的民用建筑;
3 5层及以上并设置室内消火栓系统的厂房;
4 5层及以上并设置室内消火栓系统的仓库;
5 室内消火栓设计流量大于10L/s且平时使用的人民防空工程;
6 地铁工程中设置室内消火栓系统的建筑或场所;
7 设置室内消火栓系统的交通隧道;
8 设置室内消火栓系统的地下、半地下汽车库和5层及以上的汽车库;
9 设置室内消火栓系统,建筑面积大于10000m2或3层及以上的其他地下、半地下建筑(室)。
案例:某丙类厂房的固定消防炮灭火系统,某8层住宅、某6层办公建筑、某二类城市交通隧道的室内消火栓系统,未设置消防水泵接合器;某设置地下车库的3层公共建筑,室内消火栓系统未设置消防水泵接合器。
3.0.8 防火墙、防火隔墙上消火栓暗装后未在箱后采取防止火灾蔓延的措施。
依据:《消防给水及消火栓系统技术规范 》GB 50974-2014第12.3.10条第2款 室内消火栓箱的安装应平正、牢固,暗装的消火栓箱不应破坏隔墙的耐火性能。
案例:某学校消火栓于防火墙及防火隔墙暗装,破坏了防火墙及防火隔墙的耐火性能且未采取防止火灾蔓延的措施。

3.0.9 室内消火栓布置不满足消防水枪的充实水柱达到室内任何部位的要求。
依据:《消防给水及消火栓系统技术规范》GB 50974-2014第7.4.6条 室内消火栓的布置应满足同一平面有2支消防水枪的2股充实水柱同时达到任何部位的要求,但建筑高度小于或等于24.0m且体积小于或等于5000m3的多层仓库、建筑高度小于或等于54m且每单元设置一部疏散楼梯的住宅,以及本规范表3.5.2中规定可采用1支消防水枪的场所,可采用1支消防水枪的1股充实水柱到达室内任何部位。
案例:某工业项目沥青熔化车间-3.750标高层平面仅有1支消火栓的1股充实水柱扑救。

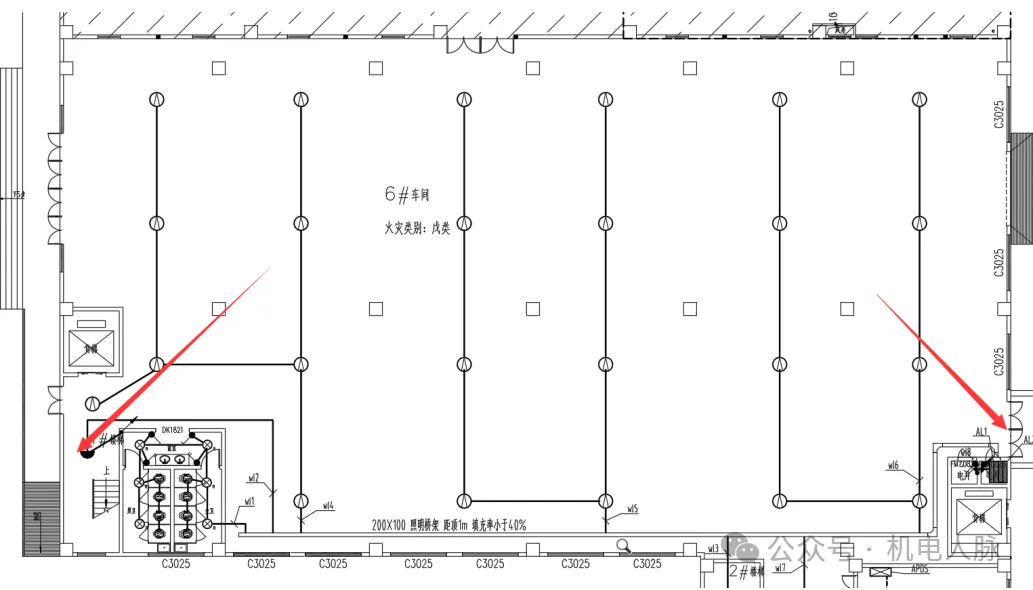
3.0.10 在设置室内消火栓的场所内,部分楼层漏设消火栓。
依据:《消防设施通用规范》GB 55036-2022第3.0.5第3款 在设置室内消火栓的场所内,包括设备层在内的各层均应设置消火栓。
案例:某工业项目硅碳车间4.500标高夹层未设置室内消火栓。

3.0.11 汽车库室内消火栓布置在柱后、柱侧、停车位后,不明显、不方便使用或影响消火栓箱门120°开启。
依据:《消防给水及消火栓系统技术规范》GB 50974-2014第7.4.7第3款 汽车库内消火栓的设置不应影响汽车的通行和车位的设置,并应确保消火栓的开启。
案例:汽车库室内消火栓布置不正确,不方便使用。

错误布置1

错误布置2

错误布置3
3.0.12 避难间未设置消防软管卷盘。
依据:《建筑防火通用规范》GB 55037-2022第7.1.16条第7款 避难间内应设置消防软管卷盘、灭火器、消防专线电话和应急广播。
案例:某医院避难间未设置消防软管卷盘。

3.0.13 室外消火栓距消防车道边缘大于2m,距离建筑物外墙小于5m。
依据:《消防给水及消火栓系统技术规范》GB 50974-2014第7.3.1条 建筑室外消火栓的布置除应符合本节的规定外,还应符合本规范第7.2节的有关规定;第7.2.6条 市政消火栓应布置在消防车易于接近的人行道和绿地等地点,且不应妨碍交通,并应符合下列规定:
1 市政消火栓距路边不宜小于0.5m,并不应大于2.0m;
2 市政消火栓距建筑外墙或外墙边缘不宜小于5.0m;
案例:某小区室外消火栓距消防车道边缘2.5m;某建筑室外消火栓距离建筑外墙3m。
3.0.14 室外消火栓、消防水泵接合器两侧沿道路方向各5米范围内设置机动车停车位,妨碍消防车在火灾时取水灭火。
依据:《建筑防火通用规范》GB 55037-2022第12.0.1条 市政消火栓、室外消火栓、消防水泵接合器等室外消防设施周围应设置防止机动车辆撞击的设施。消火栓、消防水泵接合器两侧沿道路方向各5m范围内禁止停放机动车,并应在明显位置设置警示标志。
案例:某厂房室外消火栓设置在机动车停车位后。

3.0.15 喷淋、水幕系统的报警阀前供水管采用普通蝶阀,未采用阀位锁定或明杆闸阀或信号阀。
依据:《消防设施通用规范》GB 55036-2022第4.0.7条 自动喷水灭火系统环状供水管网及报警阀进出口采用的控制阀,应为信号阀或具有确保阀位处于常开状态的措施。
案例:某工业项目喷淋、水幕系统报警阀前供水管采用普通蝶阀。

3.0.16 通透面积占吊顶总面积比例大于70%的格栅板类通透性吊顶区域采用下垂型喷头。
依据:《自动喷水灭火系统设计规范》GB 50084-2017第7.1.13条 装设网格、栅板类通透性吊顶的场所,当通透面积占吊顶总面积的比例大于70%时,喷头应设置在吊顶上方。
案例:某商业项目装饰工程,各层均有部分吊顶采用铝格栅和镂空金属板,设计未明确吊顶开孔面积比例且平面图、系统图表达为下垂型喷头,未根据通透面积占吊顶面积的比例采用直立型喷头(通透率>70%)或直立型喷头+带挡水板的下垂型喷头(通透率≤70%)。
3.0.17 具备设置自动喷水灭火系统条件的场所设置自动跟踪定位射流灭火系统。
依据:《消防设施通用规范》GB 55036-2022第4.0.1条 自动喷水灭火系统的系统选型、喷水强度、作用面积、持续喷水时间等参数,应与防护对象的火灾特性、火灾危险等级、室内净空高度及储物高度等相适应;《自动喷水灭火系统设计规范》GB 50084-2017第6.1.1条 设置闭式系统的场所,洒水喷头类型和场所的最大净空高度应符合表6.1.1的规定;《自动跟踪定位射流灭火系统技术标准》GB 51427-2021第3.1.1条 自动跟踪定位射流灭火系统可用于扑救民用建筑和丙类生产车间、丙类库房中,火灾类别为A类的下列场所;《建筑设计防火规范》GB 50016-2014(2018年版)第8.3.5条 根据本规范要求难以设置自动喷水灭火系统的展览厅、观众厅等人员密集的场所和丙类生产车间、库房等高大空间场所,应设置其他自动灭火系统,并宜采用固定消防炮等灭火系统。
建筑顶棚或楼层板为平整实体板且室内净高≤18m(民用建筑)、≤12m(厂房)、≤13.5m(仓库)的区域,应优先设置自动喷水灭火系统。难以设置自动喷水灭火系统的典型场所举例如下:
1 火灾部位较明确,需要特定保护的、建筑顶棚采用膜结构或玻璃等采光材料的部位;
2 闭式洒水喷头无法有效感知温度和无法有效喷水灭火的部位;
3 曲面吊顶、喷头固定困难、喷水有遮挡的部位。
案例:某总建筑面积约13000m2的单层钢筋砼电子类厂房,室内净高9m,其屋顶为平屋顶(i=5%)且无玻璃采光构造,不存在喷头固定困难、喷水有遮挡的情况,但其自动灭火系统采用自动跟踪定位射流灭火系统而不是自动喷水灭火系统。
3.0.18 净空8<h≤18m的民用建筑和净空8<h≤12m的厂房高大空间场所采用湿式自动喷水灭火系统时喷头间距大于3m。
依据:《自动喷水灭火系统设计规范》GB 55084-2017第5.0.2条 民用建筑和厂房高大空间场所采用湿式系统的设计基本参数不应低于表5.0.2的规定:1.8≤喷头间距S(m)≤3m。
案例:某学校多功能厅网球馆净高10.8m,局部喷头间距3.3m。
3.0.19 自动跟踪定位射流灭火系统高位消防水箱最低有效水位高度不满足最不利点灭火装置的工作压力要求。
依据:《自动跟踪定位射流灭火系统技术标准》GB 51427-2021第4.5.16条 高位消防水箱的设置高度应高于其所服务的灭火装置,且最低有效水位高度应满足最不利点灭火装置的工作压力。
案例:某中学校新建项目设置喷洒型自动射流灭火系统,高位消防水箱施加于其最不利点灭火装置的工作压力仅0.15MPa,不满足最不利点灭火装置工作压力要求。
3.0.20 当室外消火栓系统采用市政管网直接供水,未在倒流防止器前增设室外消火栓。
依据:《消防设施通用规范》GB 55036-2022第3.0.4条第2款 当室外消火栓系统的室外消防给水引入管设置倒流防止器时,应在该倒流防止器前增设1个室外消火栓。
案例:某项目室外消火栓系统采用市政管网直接供水,未在倒流防止器前增设室外消火栓。
3.0.21 湿式报警阀排水、末端试水接至报警阀间、管井、卫生间、空调机房等地漏时,地漏及排水管排水能力不足。
依据:《消防给水及消火栓系统技术规范》GB 50974-2014第9.1.2条 排水措施应满足财产和消防设施安全,以及系统调试和日常维护管理等安全和功能的需要;《消防给水及消火栓系统技术规范》GB 50974-2014第9.3.1条 消防给水系统试验装置处应设置专用排水设施,排水管径应符合本条相关规定。地漏泄水能力应符合《建筑给水排水设计标准》GB 50015-2019第4.3.8条规定。
案例:某小区车库报警阀间门口未设挡水门槛或未在排水地漏周边设排水沟(或挡水围堰),导致测试排水外溢影响建筑使用环境。

3.0.22气体灭火系统防护区门未向疏散方向开启。(提给建筑专业)
依据:《气体灭火系统设计规范 》GB 50370-2005第6.0.3条 防护区的门应向疏散方向开启。
案例:某建筑配电房气体灭火防护区门开向防护区内而不是向疏散方向开启。
4 电气
4.0.1 民用建筑中消防负荷和非消防负荷共用的柴油发电机组未设置储油量低位报警或显示功能。
依据:《建筑电气与智能化通用规范》GB 55024-2022第4.1.5条 当民用建筑的消防负荷和非消防负荷共用柴油发电机组时,应符合下列规定:
3 应具备储油量低位报警或显示的功能。
案例:某项目在设计说明未要求柴油发电机组的储油箱具有油量低位报警或显示功能,在系统图、平面图也未表达此要求。
4.0.2 建筑物内设置的总变电所至分变电所(带有消防负荷)的10kV电缆未釆用耐火电缆或矿物绝缘电缆。
依据:《民用建筑电气设计标准》GB 51348-2019第13.8.4条 消防配电线路的选择与敷设,应满足消防用电设备火灾时持续运行时间的要求,并应符合下列规定:
7 当建筑物内设有总变电所和分变电所时,总变电所至分变电所的35kV、20kV或10kV的电缆应釆用耐火电缆和矿物绝缘电缆。
案例:某学校建筑,从高压总配电至分变电所(带有消防负荷)采用WDUZB-YJY型电缆。

4.0.3 消防控制室、消防电梯、消防水泵供电干线耐火时间不满足设计火灾延续时间内为消防用电设备连续供电的需要。
依据:《建筑防火通用规范》GB 55037-2022第10.0.7条 消防配电线路的设计和敷设,应满足在建筑的设计火灾延续时间内为消防用电设备连续供电的需要。
《民用建筑电气设计标准》GB 51348-2019第13.7.16条 各类消防用电设备在火灾发生期间,最少持续供电时间应符合表13.7.16的规定。

案例:某公建项目消防控制室供电干线选用WDZBN-YJY电缆,不满足火灾发生期间最少持续供电时间要求。

4.0.4 设计文件未明确电气线路防火封堵要求,或防火封堵要求表述不全。
依据:《建筑防火通用规范》GB 55037-2022第6.3.4条 电气线路和各类管道穿过防火墙、防火隔墙、竖井井壁、建筑变形缝处和楼板处的孔隙应采取防火封堵措施。防火封堵组件的耐火性能不应低于防火分隔部位的耐火性能要求。
案例:某工程电气设计说明对电气线路防火封堵提了要求,但要求封堵的孔洞及位置不全面。

4.0.5 消防设备专用供电回路,过负荷保护未作用于信号报警而切断电源。
依据:《建筑电气与智能化通用规范》GB 55024-2022第4.3.7条 对于因过负荷引起断电而造成更大损失的供电回路,过负荷保护应作用于信号报警,不应切断电源。根据条文解释,供电回路是从低压第一级配电至终端用电设备的供电回路。
案例:某商业项目,消防供电回路在变电所、消防总箱均设置了过负荷切断电源的断路器。


4.0.6 消防风机房内每台消防风机由所属防火分区消防双切箱放射式供电时,消防风机房的备用照明直接由本机房的消防风机控制箱取电。
依据:《建筑防火通用规范》GB 55037-2022第10.1.6条 除按照三级负荷供电的消防用电设备外,消防控制室、消防水泵房的消防用电设备及消防电梯等的供电,应在其配电线路的最末一级配电箱内设置自动切换装置。防烟和排烟风机房的消防用电设备的供电,应在其配电线路的最末一级配电箱内或所在防火分区的配电箱内设置自动切换装置。防火卷帘、电动排烟窗、消防潜污泵、消防应急照明和疏散指示标志等的供电,应在所在防火分区的配电箱内设置自动切换装置。
案例:某项目消防风机房备用照明从机房内的风机控制箱取电,不满足要求,应从防火分区双电源切换箱取电。

4.0.7 消防水泵控制柜防护等级性能不满足要求。
依据:《消防设施通用规范》GB 55036-2022第3.0.12条 消防水泵控制柜应位于消防水泵控制室或消防水泵房内,其性能应符合下列规定:
1 消防水泵控制柜位于消防水泵控制室内时,其防护等级不应低于IP30;位于消防水泵房内时,其防护等级不应低于IP55。
案例:某中药材仓储物流中心项目,消防水泵控制柜与消防水泵设置在同一房间,要求其防护等级为不低于IP30,不满足最低IP55要求。
4.0.8 变电所、柴油发电机间及其控制室长度大于7m时,未设两个出入口。
依据:《建筑电气与智能化通用规范》GB 55024-2022,
第3.2.1 变电所布置应符合下列规定:
1 配电室、电容器室长度大于7m 时,应至少设置两个出入口。
第3.2.4条 柴油发电机房布置应符合下列规定:
2 柴油发电机间、控制室长度大于7米时,应至少设两个出入口。
案例:某住宅项目变配电室、柴油发电机房长9.55m,只设置了一个出入口。

4.0.9 专用蓄电池室装设普通型灯具、开关和电源插座,未采用防爆型。
依据:《建筑电气与智能化通用规范》GB 55024-2022第3.2.5条 专用蓄电池室应采用防爆型灯具,室内不得装设普通型开关和电源插座。
案例:某项目弱电机房的专用UPS电池室采用普通灯具,内设普通插座及普通照明开关,未选用防爆型。

4.0.10 甲、乙、丙类厂房,丙类仓库未设置灯光疏散指示标志。
依据:《建筑防火通用规范》GB 55037-2022第10.1.8条 除筒仓、散装粮食仓库和火灾发展缓慢的场所外,下列建筑应设置灯光疏散指示标志,疏散指示标志及其设置间距、照度应保证疏散路线指示明确、方向指示正确清晰、视觉连续:
1 甲、乙、丙类厂房,高层丁、戊类厂房;
2 丙类仓库,高层仓库。
案例:某丙类仓库,没有在疏散路径上设置灯光疏散指示标志。

4.0.11 多层住宅建筑的安全出口、疏散楼梯(间)未设置疏散照明。
依据:《建筑防火通用规范》GB 55037-2022第10.1.9条 除筒仓、散装粮食仓库和火灾发展缓慢的场所外,厂房、丙类仓库、民用建筑、平时使用的人民防空工程等建筑中的下列部位应设置疏散照明:
1 安全出口、疏散楼梯(间)、疏散楼梯间的前室或合用前室、避难走道及其前室、避难层、避难间、消防专用通道、兼作人员疏散的天桥和连廊。
案例:某住宅小区7层住宅楼,疏散楼梯及走道未设置消防疏散照明。

4.0.12 丁、戊类厂房未设置疏散照明。
依据:《建筑防火通用规范》GB 55037-2022第10.1.9条 除筒仓、散装粮食仓库和火灾发展缓慢的场所外,厂房、丙类仓库、民用建筑、平时使用的人民防空工程等建筑中的下列部位应设置疏散照明:
1 安全出口、疏散楼梯(间)、疏散楼梯间的前室或合用前室、避难走道及其前室、避难层、避难间、消防专用通道、兼作人员疏散的天桥和连廊。
案例:某多层戊类厂房未在安全出口、敞开楼梯间设置消防疏散照明。

4.0.13 安全出口外面及附近区域未设置应急照明灯具。
依据:《消防应急照明和疏散指示系统技术标准》GB 51309-2018第3.2.5条 照明灯应采用多点、均匀布置方式,建、构筑物设置照明灯的部位或场所疏散路径地面水平最低照度应符合表3.2.5的规定。
案例:某办公建筑一层安全出口外面及附近区域未设置应急照明灯具。

4.0.14 设有火灾自动报警系统的旅馆建筑客房内未设置应急照明。
依据:《宿舍、旅馆建筑项目规范》GB 55025-2022第4.1.4条 设有火灾自动报警系统的旅馆建筑,每间客房应至少有1盏灯接入应急照明供电回路。
案例:某客房数量不少于15间的旅馆建筑,客房内未设置应急照明。
4.0.15 安全出口或疏散门在疏散走道侧边时,未在疏散走道上方设置指向安全出口或疏散门的方向标志灯。
依据:《消防应急照明和疏散指示系统技术标准》GB 51309-2018第3.2.9条 方向标志灯的设置应符合下列规定:
1 有维护结构的疏散走道、楼梯应符合下列规定:
2)当安全出口或疏散门在疏散走道侧边时,应在疏散走道上方增设指向安全出口或疏散门的方向标志灯。
案例:某酒店装饰项目,未在走道上方设置指向疏散楼梯间入口的方向标志灯。

4.0.16 消防疏散标志灯具安装间距不满足要求。
依据:《消防应急照明和疏散指示系统技术标准》GB 51309-2018第3.2.9条 方向标志灯的设置应符合下列规定:
1 有维护结构的疏散走道、楼梯应符合下列规定:
3)方向标志灯的标志面与疏散方向垂直时,灯具的设置间距不应大于20m;方向标志灯的标志面与疏散方向平行时,灯具的设置间距不应大于10m。
2 展览厅、商店、候车(船)室、民航候机厅、营业厅等开敞空间场所的疏散通道应符合下列规定:
2)方向标志灯的标志面与疏散方向垂直时,特大型或大型方向标志灯的设置间距不应大于30m,中型或小型方向标志灯的设置间距不应大于20m;方向标志灯的标志面与疏散方向平行时,特大型或大型方向标志灯的设置间距不应大于15m,中型或小型方向标志灯的设置间距不应大于10m。
案例:某幼儿园走道墙上安装的疏散标志的标志面与疏散方向平等,灯具间距12.3m、13.2m,大于最大间距:10m。

4.0.17 建筑内疏散照明的地面最低水平照度不满足要求。
依据:《建筑防火通用规范》GB 55037-2022第10.1.10条 建筑内疏散照明的地面最低水平照度应符合下列规定:
1 疏散楼梯间、疏散楼梯间的前室或合用前室、避难走道及其前室、避难层、避难间、消防专用通道,不应低于10.0lx;
2 疏散走道、人员密集的场所,不应低于3.0lx;
3 本条上述规定场所外的其他场所,不应低于1.0lx。
案例:某办公建筑电气设计说明中疏散照明地面最低水平照度:疏散走道不低于1.0lx,楼梯间、前室或合用前室不低于5.0lx,不满足最低3.0lx、10.0lx要求。

4.0.18 消防应急灯具防护等级不满足要求。
依据:《消防应急照明和疏散指示系统技术标准》GB 51309-2018第3.2.1条 灯具的选择应符合下列规定:
7 灯具及其连接附件的防护等级应符合下列规定:
1) 在室外或地面上设置时,防护等级不应低于IP67;
2) 在隧道场所、潮湿场所内设置时,防护等级不应低于IP65;
3) B型灯具的防护等级不应低于IP34。
案例:某公共建筑项目,室外未采用防护等级不应低于IP67、厨房未采用防护等级不应低于IP65的消防应急照明灯具,不满足要求。

4.0.19 建筑面积大于100m2的商店建筑未设置火灾自动报警系统。
依据:《建筑防火通用规范》GB 55037-2022第8.3.2条 下列民用建筑或场所应设置火灾自动报警系统:
1 商店建筑、展览建筑、财贸金融建筑、客运和货运建筑等类似用途的建筑。
案例:某单层商业建筑,建筑面积334.59m2,未设置火灾自动报警系统。

4.0.20 消防水池水位未传输至消防控制室、消防控制室未设置消防水池高低水位报警装置。
依据:《消防设施通用规范》GB 55036-2022第3.0.8条 消防水池应符合下列规定:
4 消防水池的水位应能就地和在消防控制室显示,消防水池应设置高低水位报警装置。
案例:某住宅小区,建筑面积90228m2,消防水池设置在地下车库内,消防水池的水位信号未传输至消防控制室。

4.0.21 消防控制室未采取防水淹的技术措施。
依据:《建筑防火通用规范》GB 55037-2022第4.1.8条 消防控制室的布置和防火分隔应符合下列规定:
6 消防控制室应采取防水淹、防潮、防啮齿动物等的措施。
案例:某住宅小区项目,消防控制室设在负一层,且所处位置为小区低洼地带,其疏散门外为通向地面的敞开式楼梯,未考虑合理的防水淹技术措施,存在水淹消防控制室的隐患。
4.0.22 火灾自动报警系统总线在穿越防火分区处,未设置总线短路隔离器。
依据:《消防设施通用规范》GB 55036-2022第12.0.4条 火灾自动报警系统总线上应设置总线短路隔离器,每只总线短路隔离器保护的火灾探测器、手动火灾报警按钮和模块等设备的总数不应大于32点。总线在穿越防火分区处应设置总线短路隔离器。
案例:某项目火灾自动报警系统总线在穿越防火分区处时,未设置总线短路隔离器。

图1 总线穿越防火墙

图2总线穿越防火卷帘
4.0.23 可燃气体探测器未接入独立组成的可燃气体探测报警系统,而直接接入火灾报警控制器报警总线。
依据:《消防设施通用规范》GB 55036-2022第12.0.13条 可燃气体探测报警系统应独立组成,可燃气体探测器不应直接接入火灾报警控制器的报警总线。
案例:某项目主控通信楼附属厨房内,可燃气体探测器直接接入火灾报警控制器的报警总线。

4.0.24 排烟系统280℃排烟防火阀未联锁关闭相应补风机。
依据:《消防设施通用规范》GB 55036-2022第11.3.5条 下列部位应设置排烟防火阀,排烟防火阀应具有在280℃时自行关闭和联锁关闭相应排烟风机、补风机的功能:
1 垂直主排烟管道与每层水平排烟管道连接处的水平管段上;
2 一个排烟系统负担多个防烟分区的排烟支管上;
3 排烟风机入口处;
4 排烟管道穿越防火分区处。
案例:某项目只设计了280℃排烟防火阀联锁关闭排烟风机控制线,系统图、平面图均未设计280℃排烟防火阀联锁关闭相应补风机。

4.0.25 楼梯间应急排烟窗未设置消防联动开启功能。
依据:《建筑防火通用规范》GB 55037-2022第2.2.4条 设置机械加压送风系统并靠外墙或可直通屋面的封闭楼梯间、防烟楼梯间,在楼梯间的顶部或最上一层外墙上应设置常闭式应急排烟窗,且该应急排烟窗应具有手动和联动开启功能。
案例:某学校项目,设有机械加压送风系统的楼梯间顶部设有常闭式应急排烟窗,电气专业未设计消防联动。

4.0.26 出入口控制系统、停车场管理系统未进行消防联动。
依据:《建筑电气与智能化通用规范》GB 55024-2022第5.3.6条 出入口控制系统、停车库(场)管理系统应能接收消防联动控制信号,并应具有解除门禁控制的功能。
案例:某住宅小区项目,未设置消防联动模块控制出入口控制系统。
4.0.27 会议系统未进行消防联动。
依据:《建筑电气与智能化通用规范》GB 55024-2022第5.1.7条 会议系统和会议同声传译系统应具备与火灾自动报警系统联动的功能。
案例:某政府办公楼项目,会议系统控制主机未提供火灾自动报警联动触发接口,在火灾时联动终止会议功能。

4.0.28 消火栓按钮直接启动消防水泵。
依据:《消防给水及消火栓系统技术规范》GB 50974-2014第11.0.4条 消防水泵应由消防水泵出水干管上设置的压力开关、高位消防水箱出水管上的流量开关,或报警阀压力开关等开关信号直接自动启动消防水泵。消防水泵房内的压力开关宜引入消防水泵控制柜内。
案例:某学校建筑,地下车库设有火灾自动报警系统、教学楼未设置火灾自动报警系统,教学楼消火栓按钮直接启动消火栓泵,不符合规范规定。

4.0.29 设有火灾自动报警系统的建筑,敞开楼梯间未设置火灾探测器。
依据:《火灾自动报警系统设计规范》GB 50116-2013,
第3.3.3条 下列场所应单独划分探测区域:
1 敞开或封闭楼梯间、防烟楼梯间。
第6.2.2条 点型火灾探测器的设置应符合下列规定:
1 探测区域的每个房间应至少设置一只火灾探测器。
案例:某厂房研发车间,敞开楼梯间未设置火灾探测器。

4.0.30 净高大于2.6m的技术夹层内未设置火灾探测器。
依据:《火灾自动报警系统设计规范》GB 50116-2013,
第3.3.3条 下列场所应单独划分探测区域:
4 建筑物闷顶、夹层。
第6.2.2条 点型火灾探测器的设置应符合下列规定:
1 探测区域的每个房间应至少设置一只火灾探测器。
案例:某项目高大空间内净高大于2.6m的技术夹层未设置火灾探测器。(技术夹层下方各功能区域均设置了火灾探测器,技术夹层内未设置火灾探测器)

4.0.31 大空间火警探测布置未考虑防烟分区划分。
依据:《火灾自动报警系统设计规范》GB 50116-2013第4.5.2条 排烟系统的联动控制方式应符合下列规定:
1 应由同一防烟分区内的两只独立的火灾探测器的报警信号,作为排烟口、排烟窗或排烟阀开启的联动触发信号,并应由消防联动控制。
案例:某项目高大空间内设置红外对射式感烟火灾探测器或吸气式感烟火灾探测器时,未按防烟分区布置探测器,导致排烟口无法按区域开启。

4.0.32 设置火灾自动报警系统的建筑物,电梯前室、疏散楼梯间内未设置消防广播扬声器。
依据:《民用建筑电气设计标准》GB 51348-2019第13.3.6条 消防应急广播系统设计应符合下列规定:
5 电梯前室、疏散楼梯间内应设置应急广播扬声器。
案例:某办公建筑,疏散楼梯间内未设置消防广播扬声器。

4.0.33 避难间内未设置消防应急广播。
依据:《建筑防火通用规范》GB 55037-2022第7.1.16条 避难间应符合下列规定:
7 避难间内应设置消防软管卷盘、灭火器、消防专线电话和应急广播。
案例:某高层病房楼的避难间内未设置消防广播。

4.0.34 紧急广播系统备用电源的连续供电时间与消防应急照明和疏散指示系统备用电源的连续供电时间不一致。
依据:《建筑电气与智能化通用规范》GB 55024-2022第5.1.5条 公共广播系统设计应符合下列规定:
2 紧急广播应具有最高级别的优先权,紧急广播系统备用电源的连续供电时间应与消防疏散指示标志照明备用电源的连续供电时间一致。
案例:某项目消防广播系统备用电源连续供电时间20min,低于消防疏散指示标志照明备用电源的连续供电时间30min。


4.0.35 气体灭火控制系统操作装置处未设置消防专用电话分机。
依据:《火灾自动报警系统设计规范》GB 50116-2013第6.7.4条 电话分机或电话插孔的设置,应符合下列规定:
1 消防水泵房、发电机房、配变电室、计算机网络机房、主要通风和空调机房、防排烟机房、灭火控制系统操作装置处或控制室、企业消防站、消防值班室、总调度室、消防电梯机房及其他与消防联动控制有关的且经常有人值班的机房应设置消防专用电话分机。
案例:某项目变电所内设置有气体灭火装置,未在气体灭火控制盘处设置消防电话分机。

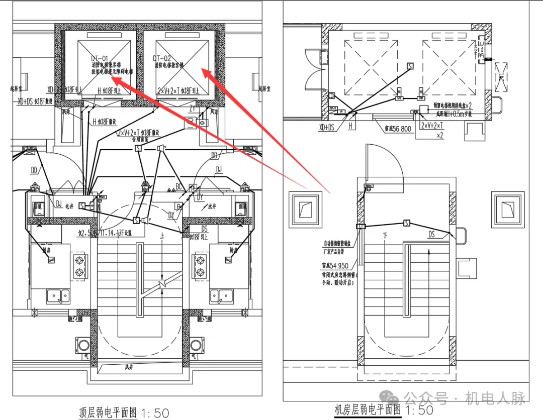
4.0.36 消防电梯内部未设置消防专用对讲电话、视频监控系统终端设备。
依据:《建筑防火通用规范》GB 55037-2022第2.2.10条 消防电梯应符合下列规定:
6 电梯轿厢内部应设置专用消防对讲电话和视频监控系统的终端设备。
案例:某住宅项目仅在电梯机房设置了消防专用对讲电话,电梯轿厢内部未设置。(注:视频监控终端可由智能化专业表达)

4.0.37 火灾自动报警系统设备的防护等级不满足设置场所环境的要求。
依据:《消防设施通用规范》GB 55036-2022第12.0.18条 火灾自动报警系统设备的防护等级应满足在设置场所环境条件下正常工作的要求。
案例:某公共建筑项目,厨房内火灾探测器、声光报警器、消防广播未采用防护等级不应低于IP65的设备,不符合规范规定。

4.0.38 火灾自动报警系统的供电线路、消防联动控制线路线缆燃烧性能等级选型不满足要求。
依据:《消防设施通用规范》GB 55036-2022第12.0.16条 火灾自动报警系统的供电线路、消防联动控制线路应采用燃烧性能不低于B2级的耐火铜芯电线电缆,报警总线、消防应急广播和消防专用电话等传输线路应采用燃烧性能不低于B2级的铜芯电线电缆。
案例:某项目火灾自动报警系统未采用燃烧性能不低于B2级的线缆。注:民用建筑应满足(工业建筑宜满足)《民用建筑电线电缆防火设计标准》DBJ50/T-164-2021。

5 暖通
5.0.1 防烟排烟管道直接采用土建风道,未在土建竖井内设置钢板风道。
依据:《消防设施通用规范》GB 55036-2022第11.1.3条:“机械加压送风管道和机械排烟管道均应采用不燃性材料,且管道的内表面应光滑,管道的密闭性能应满足火灾时加压送风或排烟的要求。”
案例:某些项目设计时应建设方要求取消土建竖井内钢板风道,由于现有施工水平无法确保、验证土建风道的光滑、密闭性能满足火灾时加压送风或排烟的要求,在GB 51251修订版未发布实施以前,防排烟土建竖井内仍应设置钢板风道,防烟排烟管道不应直接采用土建风道。
5.0.2 加压送风楼梯间顶部设置固定窗,未设置应急排烟窗;或机械排烟场所设置了固定窗,未设置应急排烟排热设施。
依据:《建筑防火通用规范》GB 55037-2022第2.2.4条:“设置机械加压送风系统并靠外墙或可直通屋面的封闭楼梯间、防烟楼梯间,在楼梯间的顶部或最上一层外墙上应设置常闭式应急排烟窗,且该应急排烟窗应具有手动和联动开启功能。”
第2.2.5条:“除有特殊功能、性能要求或火灾发展缓慢的场所可不在外墙或屋顶设置应急排烟排热设施外,下列无可开启外窗的地上建筑或部位均应在其每层外墙和(或)屋顶上设置应急排烟排热设施,且该应急排烟排热设施应具有手动、联动或依靠烟气温度等方式自动开启的功能。”
案例:在GB 51251修订版未发布实施以前,GB 55037-2022要求设置的应急排烟窗、应急排烟排热设施的面积,现阶段可以参照GB 51251-2017有关“固定窗”的面积要求执行。
应急排烟窗、应急排烟排热设施由暖通专业提资,建筑专业设计实施(含手动开启装置),联动功能由电气专业设计实施。
某项目在加压送风楼梯间顶部设置固定窗,设计违规:

5.0.3 地下楼梯间采用自然通风,可开启外窗或开口未设置在最高部位。
依据:《建筑防烟排烟系统技术标准》GB 51251-2017第3.2.1条:“采用自然通风方式的封闭楼梯间、防烟楼梯间,应在最高部位设置面积不小于 1.0m2的可开启外窗或开口。”
案例:GB 51251-2017第3.2.1条“最高部位”是指:
1 对于地上楼梯间,“最高部位”指楼梯间顶板或顶层的外墙梁底。
2 对于地下楼梯间,“最高部位”指楼梯间首层的顶板或外墙梁底。确有困难时,可开启窗口可紧贴布置在楼梯间首层中间平台上方的梁底,且可开启窗口底边不应低于室外地坪。
当地下楼梯间埋深不大于10.0m,且地下层数为2层时,自然通风可开启窗口的总面积尚不应小于2.0m2。(不含直通室外的门)
某项目地下车库1层封闭楼梯间的可开启外窗面积不小于1.2m2,外窗底边高于楼梯间首层中间平台,且高于室外地坪。设计合规,见下图:

5.0.4 某办公楼的首层扩大(合用)前室开有多个连通走道或房间的门洞,仅设置1个与上部楼层前室相同的送风口,余压不满足要求;有的扩大(合用)前室设计采用自然通风,但可开启外窗面积不足3m2,且未设加压送风。
依据:《消防设施通用规范》GB 53036-2022第11.2.5条:“机械加压送风系统的送风量应满足不同部位的余压值要求。不同部位的余压值应符合下列规定:
1 前室、合用前室、封闭避难层(间)、封闭楼梯间与疏散走道之间的压差应为25Pa~30Pa。”
案例:首层扩大前室(含扩大合用前室)应优先采用自然通风的防烟方式,在扩大前室外墙上部设置不小于3m2、且不小于扩大前室地面积3%的可开启外窗(不含外门);扩大前室有挑高区域时,可开启外窗宜设于挑高区域上部,并在距地面1.3m-1.5m高的方便位置设置手动开启装置。有条件时,首层扩大前室尚宜同时设置与上部楼层(合用)前室送风量相同的送风口,以保持扩大前室核心区正压。
某办公建筑首层扩大前室有1个连通物管用房的疏散门,同时设有正压送风口及不小于3m2的可开启外窗。设计合规,见下图:

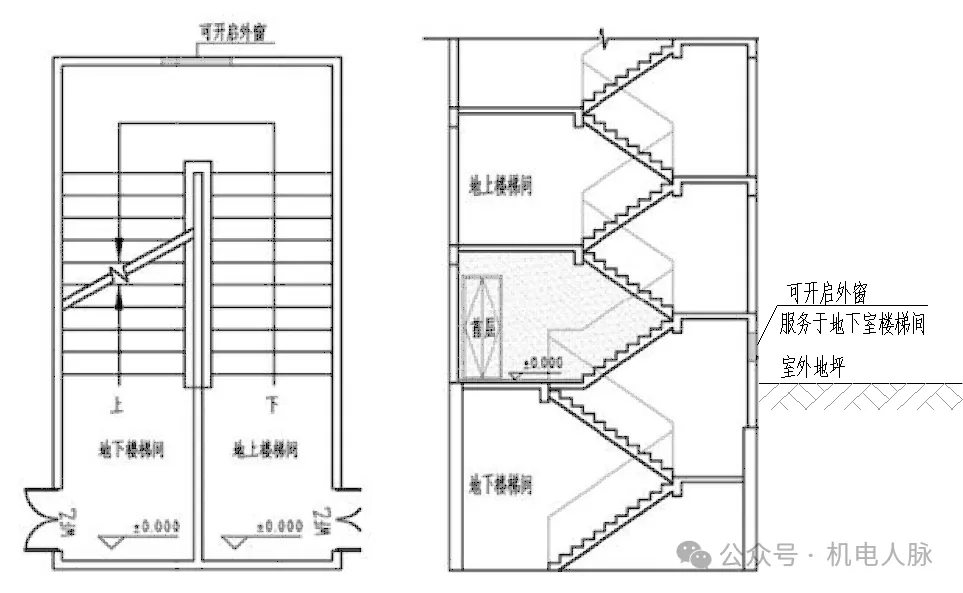
5.0.5 设置有排烟设施的建筑内,敞开楼梯间与走道相通时,穿越楼板的开口处未设挡烟垂壁;或在敞开楼梯间最高层也设置了挡烟垂壁。
依据:《建筑防烟排烟系统技术标准》GB 51251-2017第4.2.3条:“设置排烟设施的建筑内,敞开楼梯和自动扶梯穿越楼板的开口部应设置挡烟垂壁等设施。”
案例:按规范要求,敞开楼梯穿越楼板的开口部应设置挡烟垂壁;但在楼梯间的最高层不应设置挡烟垂壁,否则反而影响楼梯间自然排烟;敞开式外廊、车库直接对外的出入口等与室外交界处也无需设置挡烟垂壁。
某办公室设置有自然排烟措施,其敞开楼梯与走廊相通处未设挡烟垂壁。设计违规,见下图:

5.0.6 民用建筑内,有不能自然排烟的房间与走道通过门洞连通,走道长度超过20m,只在走道1端设置了有效面积不小于走道地面积2%的自然排烟窗口。
依据:《建筑防烟排烟系统技术标准》GB 51251-2017第4.6.3条第3 款:“当公共建筑仅需在走道或回廊设置排烟时,其机械排烟量不应小于13000m3/h,或在走道两端(侧)均设置面积不小于2m2的自然排烟窗(口)且两侧自然排烟窗(口)的距离不应小于走道长度的2/3。”
案例:当与走道或回廊相连通的房间均设有“满足GB 51251-2017规定的排烟系统”时,走道或回廊排烟可执行GB 51251-2017第4.6.3条第4款。“满足GB 51251-2017规定的排烟系统”是指:走道2侧任何面积的经常有人停留或可燃物较多的房间(除配电间、卫生间及管井等无烟空间外)均设有机械排烟或自然排烟(自然排烟窗口的设置高度、有效面积均满足规定)。
其余情况走道排烟均应执行GB 51251-2017第 4.6.3 条第 3款。
另外,除相关规范有特殊规定外,工业建筑、居住建筑的走道排烟参照公共建筑的要求执行。
某办公建筑走道长度大于20m,有不能自然排烟的储藏间与之连通,走道应在两端均设置面积不小于2m2的自然排烟窗(口),且两端自然排烟窗(口)的距离不应小于走道长度的2/3。如下图:

5.0.7 某建筑同一疏散走道采用门分隔为多段,各段长度小于20m,但总长度大于20m,未设置排烟设施。
依据:《建筑防火通用规范》GB 55037-2022第7.1.5条:“疏散走道在防火分区分隔处应设置疏散门。”
案例:除在疏散走道内防火分区处设置的甲级防火门可将相连的疏散走道分成两个独立的疏散走道以外,同一疏散走道内设置的其他分隔门、防火门,均不能将该疏散走道认作成多个独立走道,该疏散走道的排烟计算长度应按疏散走道各段的长度叠加计算。
疏散走道总长度符合GB 55037-2022第8.2.2条第10款规定时,走道各段均应设排烟设施。
某医院项目内走道总长度超过20m,中间设功能分区门,走道未设排烟,违反规定。如下图:

5.0.8 疏散通道、疏散走道、疏散出口处设置的挡烟垂壁下沿距地小于2.1m。
依据:《建筑防火通用规范》GB 55037-2022第7.1.5条:“在疏散通道、疏散走道、疏散出口处,不应有任何影响人员疏散的物体,并应在疏散通道、疏散走道、疏散出口的明显位置设置明显的指示标志。疏散通道、疏散走道、疏散出口的净高度均不应小于2.1m。疏散走道在防火分区分隔处应设置疏散门。”
案例:依据GB 51251-2017第4.6.9条:“走道、室内空间净高不大于3m的区域,其最小清晰高度不宜小于其净高的 1/2。”据此,排烟计算清晰高度、储烟仓厚度都可按1/2净高确定,但挡烟垂壁的下沿距装修完成地面的高度仍然不应小于2.1m。
某项目设置在疏散走道的固定挡烟垂壁距地2.0m,小于规范要求的最小净高2.1m,如下图。

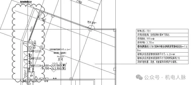
5.0.9 自然排烟场所设置了自然排烟窗(口),暖通图纸排烟信息说明和建筑图纸不一致,在储烟仓内的可开启窗(口)有效面积不满足自然排烟要求。有的项目在防火墙2侧的自然排烟窗口边缘间距不足2.0m。
依据:《建筑防烟排烟系统技术标准》GB 51251-2017第4.3.3条:“自然排烟窗(口)应设置在排烟区域的顶部或外墙,并应符合下列规定:
1 当设置在外墙上时,自然排烟窗(口)应在储烟仓以内,但走道、室内空间净高不大于3m的区域的自然排烟窗(口)可设置在室内净高度的1/2以上。
5 设置在防火墙两侧的自然排烟窗(口)之间最近边缘的水平距离不应小于2.0m。”
案例:自然排烟窗(口)开启的有效面积应按《建筑防烟排烟系统技术标准》GB 51251-2017第4.3.5条计算。
下图9-1为某项目暖通图纸,防烟分区面积199m2,净高3.78m,设计清晰高度2.1m,储烟仓厚度1.68m,设有外窗C4521;经计算,该房间所需的有效排烟面积应不小于地面积的2%,即3.98m2,但经查建筑门窗大样图,外窗C4521在储烟仓内的可开启有效排烟面积为2.23m2,不足地面积的2%。
下图9-2为该项目自然排烟平面图,楼梯间防火墙两侧的自然排烟窗最近边缘水平距离不足2.0m。

图9-1

图9-2
5.0.10 采用自然排烟的场所,自然补风口按照断面风速3m/s的最小面积设计,导致补风量不足。
依据:《建筑防烟排烟系统技术标准》GB 51251-2017
第4.5.2条:“补风系统应直接从室外引入空气,且补风量不应小于排烟量的50%。”
案例:《建筑防烟排烟系统技术标准》GB 51251-2017第4.5.6条“自然补风口的风速不宜大于3m/s”是指机械排烟场所设置自然补风口的要求,不适用于自然排烟场所。
某项目自然排烟场所按照机械排烟场所“自然补风口的风速不应大于3m/s”的要求设置最小自然补风口,导致自然补风窗口面积不足、补风量不足。见下图:

5.0.11 采用自然排烟的区域,未标注设计清晰高度、储烟仓内可开启外窗的有效面积、手动开启装置情况等完整的排烟信息。
依据:《重庆市建筑工程施工图设计文件编制技术规定(2024年版)》第3.6.5条第5款:
“防排烟平面图中应表示出防烟分区信息表,包含防烟分区编号、面积、防烟分区长边长度、吊顶形式、净高、最小/设计清晰高度、储烟仓厚度、是否设置喷淋、计算排烟量、自然排烟口计算面积及设计面积、自然补风口面积等。”
案例:自然排烟区域的排烟信息应按下表内容表达:

5.0.12 机械排烟口的设计排烟量超过计算最大允许排烟量。
依据:《建筑防烟排烟系统技术标准》GB 51251-2017第4.4.12条:“排烟口的设置应按本标准第4.6.3条经计算确定……排烟口的设置尚应符合下列规定:
6 每个排烟口的排烟量不应大于最大允许排烟量,最大允许排烟量应按本标准第4.6.14条的规定计算确定。”
案例:依据GB 51251-2017第4.6.9条:“走道、室内空间净高不大于3m的区域,其最小清晰高度不宜小于其净高的 1/2。”据此,走道、室内空间净高不大于3m的区域,计算排烟口的最大允许排烟量时,储烟仓厚度可按1/2净高计算;也可按GB 51251-2017第 4.4.12 条第 7 款规定的最大风速计算。
5.0.13 机械补风口未设置在储烟仓下沿以下或与机械排烟口的水平距离小于5m。
依据:《建筑防烟排烟系统技术标准》GB 51251-2017
第4.5.4条:“补风口与排烟口设置在同一空间内相邻的防烟分区时,补风口位置不限;当补风口与排烟口设置在同一防烟分区时,补风口应设在储烟仓下沿以下;补风口与排烟口水平距离不应少于5m。”
案例:某项目车库机械补风口与机械排烟口的水平距离4m,小于规范要求的最小水平距离5m,如下图:

5.0.14 通风和空气调节系统的管道、防烟与排烟系统的管道穿过防火隔墙处,未设置防火阀或排烟防火阀。
依据:《建筑防火通用规范》GB 55037-2022第6.3.5条:“通风和空气调节系统的管道、防烟与排烟系统的管道穿过防火墙、防火隔墙、楼板、建筑变形缝处,建筑内未按防火分区独立设置的通风和空气调节系统中的竖向风管与每层水平风管交接的水平管段处,均应采取防止火灾通过管道蔓延至其他防火分隔区域的措施。”
案例:目前,设置防火阀是防止火灾蔓延的主要且唯一被认可的措施。
某项目新风管道穿越通风机房防火隔墙处未设置防火阀,如下图。

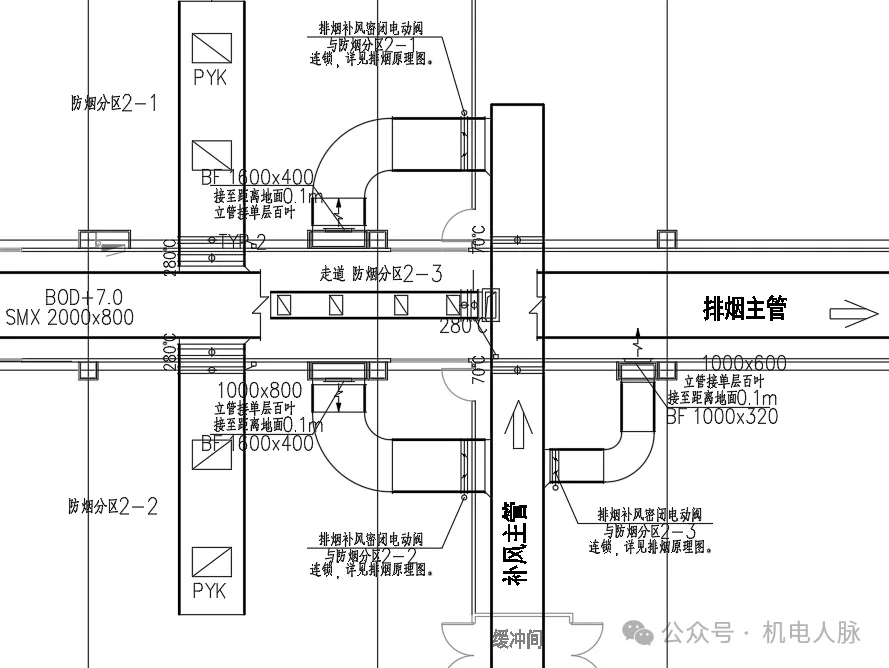
5.0.15 同一个防烟分区排烟支管上设置多个带排烟防火阀的(常闭)排烟口。
依据:《消防设施通用规范》GB 55036-2022第11.3.5条:“下列部位应设置排烟防火阀,排烟防火阀应具有在280℃时自行关闭和联锁关闭相应排烟风机、补风机的功能:
2 一个排烟系统负担多个防烟分区的排烟支管上。”
案例:依据建设部通用规范编制专家组在全国的宣贯会内容及条文解释精神,和排烟系统的控制要求,同一个防烟分区的排烟支管只需要设置1个排烟防火阀,由此排烟防火阀发出该防烟分区排烟结束、关闭排烟风机的联锁信号。
某项目走道某防烟分区的多个排烟防火阀及常闭排烟口直接设于排烟主管上,防烟分区未设置独立的排烟支管,如下图15-1为错误做法,下图15-2为正确做法。

图15-1

图15-2
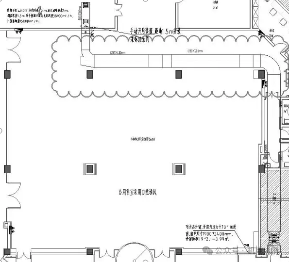
5.0.16 地下大于50m2的房间设置机械排烟时,室内未设补风口。
依据:《消防设施通用规范》GB 55036-2022第11.3.6条:“除地上建筑的走道或地上建筑面积小于500m²的房间外,设置排烟系统的场所应能直接从室外引入空气补风,且补风量和补风口的风速应满足排烟系统有效排烟的要求。”
案例:地下大于50m2的房间设置机械排烟时,补风口应设于排烟房间内。
某项目地下大于50m2的房间、走道分别设置与排烟阀联动的电控常闭补风口。设计合规,见下图:

5.0.17 同一个机械排烟系统同时承担水平方向超过1个防火分区的排烟。
依据:《消防设施通用规范》GB 55036-2022第11.3.3条:“机械排烟系统应符合下列规定:
1 沿水平方向布置时,应按不同防火分区独立设置。”
案例:部分设计项目偷换概念,在某一楼层的水平排烟主管上设置穿越防火楼板的竖向支管,承担上层或下层不同防火分区的排烟;或者将属于下层防火分区的挑高空间排烟接入本层的机械排烟系统。
某项目1层指挥中心(挑高空间净高8.0m)上空四周有防火墙和卷帘与2层其余房间分隔,属于1层防火分区,设计将1层指挥中心的排烟与2层内走道合用1个排烟系统,设计违规。如下图:

5.0.18 使用天然气的厨房、热水机房未设置通风、防爆泄压措施。
依据:《建筑防火通用规范》GB 53037-2022第4.3.12条:“建筑内使用天然气的部位应便于通风和防爆泄压。”
案例:某学校新建食堂厨房使用燃气,该厨房没有可开启外窗,属于地上密闭房间,没有设计工作通风和事故通风措施。
5.0.19 地下面积大于50㎡、无可开启外窗的消防控制室、垃圾间及独立电梯厅等未设置排烟设施。
依据:《建筑防火通用规范》GB 55037-2022第8.2.5条:“建筑中下列经常有人停留或可燃物较多且无可开启外窗的房间或区域应设置排烟设施:
1、建筑面积大于50m2的房间;
2、房间的建筑面积不大于50m2,总建筑面积大于200m2的区域。”
案例:某项目车库内大于50m2的无可开启外窗消防控制室、电梯厅漏设排烟设施。
5.0.20 排烟风管穿越封闭楼梯间、防烟楼梯间及其前室、避难间等安全区。
依据:《建筑防火通用规范》GB 55037-2022第7.1.8条:“室内疏散楼梯间应符合下列规定:
5 除疏散楼梯间及其前室的出入口、外窗和送风口,住宅建筑疏散楼梯间前室或合用前室内的管道井检查门外,疏散楼梯间及其前室或合用前室内的墙上不应设置其他门、窗等开口。”
案例:结合GB 55037-2022第7.1.15 条第 5 款、第 7.1.16 条第 5 款规定,为保证人员疏散安全,排烟管道不应穿越建筑内楼梯间、前室、合用前室、共用前室、避难区、避难间等安全区。
某项目排烟管道穿越首层扩大合用前室,如下图。

5.0.21 无关风管穿越建筑物电气设备用房和智能化设备用房。
依据:《建筑电气与智能化通用规范》GB 55024-2022第2.0.3条:“建筑物电气设备用房和智能化设备用房应符合下列规定:
3 无关的管道和线路不得穿越。”
案例:某项目地下车库内加压送风管穿越信息机房。
5.0.22 建筑厨房的事故通风管道穿越防火墙,或爆炸危险性房间、人员聚集的房间、可燃物较多的房间的隔墙。
依据:《建筑防火通用规范》GB 55037-2022 第9.1.3条:“排除有燃烧或爆炸危险性物质的风管不应穿过防火墙,或爆炸危险性房间、人员聚集的房间、可燃物较多的房间的隔墙。”
案例:《建筑防火通用规范》GB 55037-2022实施指南第9.1.3条实施要点中写明: “排除含有燃烧或爆炸危险性物质的风管包括正常通风管道和事故通风管道,主要是……,以及民用建筑和其他工程中使用可燃气体、可燃液体和可能产生可燃粉尘等物资场所的排风管道,而厨房使用可燃气体时,其事故排风管道均应按本条规定进行设计。”
某建筑厨房的事故通风管道穿过会议室的隔墙。

5.0.23 某建筑电动地下车库排烟设计时,将同一防火分区的4个防火单元的排烟和补风系统共用,且无可靠的平灾转换控制措施。
依据:依据《电动汽车分散充电设施工程技术标准》GB/T 51313-2018》:“电动地下车库的每个防火单元采用耐火极限不小于2.0h的防火隔墙或防火卷帘、防火分隔水幕等与其他防火单元和汽车库其他部位分隔成独立的空间。”
案例:当建筑专业按GB/T 51313-2018设计有电动车库防火单元时,依据《建筑防烟排烟系统技术标准》GB 51251-2017第4.2.1条规定,各防火单元可视为一个独立的防烟分区。同一防火分区内的防火单元可合用通风系统、排烟系统、补风系统,但每个系统负担的防火单元数量不应超过 2 个。
同一防火分区的电动地下车库的2个防火单元通风、排烟、补风系统可参照下图“典型做法图”设置:防火单元的排烟支管、补风支管设常开电动防火阀,平时排风;火灾时关闭未失火防火单元的支管防火阀,转入消防排烟工况。设计合规,见下图:

图23 电动车库防火单元排烟、补风系统典型做法图
5.0.24 某建筑面积大于50m2的培训教室,外窗为常闭乙级防火窗,或为固定窗,房间未设置排烟设施。
依据:《建筑防火通用规范》GB 55037-2022第8.2.5条:“建筑中下列经常有人停留或可燃物较多且无可开启外窗的房间或区域应设置排烟设施:
1 建筑面积大于50m2的房间;
2 房间的建筑面积不大于50m2,总建筑面积大于200m2的区域。”
案例:常闭防火窗(或火灾时关闭的常开防火窗)、固定窗均不属于可开启外窗,不能视为自然通风排烟窗口。