
一、 深化设计制
推进机电深化设计制有如下作用:
1、合理的综合布置各专业管线,减少由于管线冲突造成的返工,使现场更加美观。
2、优化完善各系统的设计方案,提高机电安装工程的施工品质,缩短施工周期。
3、根据现场实际情况对图纸进行深化,使之达到施工深度的要求。
4、对设计的管线和设备参数进行全面的复核,在满足功能和规范的前提下优化方案的选择,提高工程经济效益。
5、有利于施工企业与国际惯例接轨。


说明:
1、各专业管线排布合理,层次清晰,整齐美观。
2、管线支架设置合理,安装牢固,体现了良好的安装风格。
3、各专业管线、支架的间距和标高明确,便于指导施工。

说明:通过对各专业管线的叠加,便于深化各管线交叉、冲突的部位,使施工过程中减少返工。深化 设计施工图的图名、图号、图框、线型、线宽、标识及说明均需有统一标准.

说明:
利用BIM技术进行三维建模,能够将各专业管线数据进行融合,可以直观的呈现机电安装效 果,我们能够及早发现管线可能出现的交叉碰撞,并做出有针对性的优化布局。这样可以减 少管线的相互避让或翻弯,极大的降低了返工的几率及材料的浪费。设备、管线及支架的安 装也将更加合理有序、美观整齐。

说明:
1、机房设备、管线及支架排布应整齐有序、构架清晰合理,符合设计及规范要求。
2、阀门、仪表及其它附件安装高度一致,且便于操作、检查。
3、机房要做到有组织排水;为设备的进出、检修及人员的操作留出足够的空间。

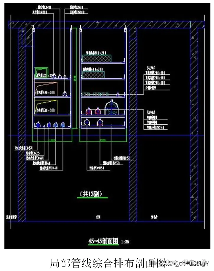
说明:
1、管线综合排布应遵循的原则:①有压管让无压管;②水、电管让风管;③小管让大管;
④电气管线 与水管保持适当距离,尽量不要布置在水管下方;⑤尽量使用联合支架。
2、吊顶及管廊内的管线综合排布是机电安装的难点,这些地方的标高及空间有限,管线
排布容易冲突。在布局时要同时考虑施工空间、设备安装空间及日后的检查维修空间。
二、样板引路制


说明:
1、井道安装是机电安装的重点和难点,必须推行深化设计制和样板引路制。
2、井道安装布置原则:①确保管线安装安全可靠,满 足使用功能;②机电排布不能影响土建结构,且必须保证有充足的操作及检修空间;③管线布置要求排列 整齐、美观大方,管线规格与间距协调统一;④避免 不必要的管线翻弯交叉;⑤在满足设计及规范的前提 下,尽量使用共用综合支架。

说明:
1、小便斗中心线与墙砖对缝吻合,居中 布置美观合理。
2、小便斗与墙面接缝紧密,观感良好。

走廊机电综合管线安装样板 走廊机电综合管线安装样板
说明:
走廊一般是机电施工的重点,选取标 准层设立样板,及时发现问题,方便后 期大规模施工。

说明:
1、推行样板引路制可以直观呈现安装所要达到的效果。可以为施工技术交底和质量检查验收提供统一的安装标准和尺度。
2、针对施工的难点和工序的重点,推行样板引路制能够有效消除质量通病,提高安装水平。

说明:
1、根据设计和规范要求,在后砌墙上进行弹线,保 证给水甩口在同一标高。
2、给水甩口用砂浆固定,防止松动歪斜。
3、甩口用管堵封堵,防止杂物进入管道。
三、放线制
说明:放线的作用是尺寸定位,指导施工。安装前进行放线,可以使管线安装平直,标高及安装部位不出现偏差,使安装效果美观。

说明:
1、线盒安装前弹线,可以保证线盒在同一标高。
2、墙体剔槽前弹线,可以使管槽美观,避免剔槽随 意性,造成墙体破坏;也可以保证线管敷设整齐美 观。

说明:
水平管道安装前,在楼板上进行弹线,确定管道走向;然后根据弹线安装管道支、 吊架,再根据支、吊架位置进行管道安装,这样能够保证管道安装平直美观。

说明:
线盒预埋时放线定位,保证线盒在一条直线上,线盒间的线管也能保证横平竖直。

说明:
安装立管前,用线垂进行放线,使立管 支架的位置一致,并确保立管在竖直方向不会出现歪斜或偏差。
㈣ 标签验收制



说明:
验收标签需写明分项工程名称、施工部位、施工单位、验收人员、验收依据以及测量数据, 最后注明验收是否合格。

说明:
1、推进标签验收制有利于及时发现安装过程中出现的质量问题,及早发现及早整改。
2、标签制度由专人负责,保证质量监查工作分阶段、分区域落实到位。