

深化要点:
①阳台洗衣机与太阳能的水电点位应设置在同一侧,便于集中使用,利于成本优化;
②太阳能热水器的定位应根据外窗结构尺寸优化定位,避免与开启窗扇碰撞。
③洗衣机地漏的定位应便于使用,严禁设在洗衣机底部。
④插座的定位不得影响太阳能热水器的安装,便于使用。
⑤水电点位的定位尺寸详见上图,距墙边的标注尺寸均以完成面为准。
问题照片:

深化要点:
①阳台洗衣机与太阳能的水电点位应设置在同一侧,便于集中使用,利于成本优化;
②太阳能热水器的定位应根据外窗结构尺寸优化定位,避免与开启窗扇碰撞。
③洗衣机地漏的定位应便于使用,严禁设在洗衣机底部。
④插座的定位不得影响太阳能热水器的安装,便于使用。
⑤水电点位的定位尺寸详见上图,距墙边的标注尺寸均以完成面为准。
问题照片:

深化要点:
①应充分考虑地漏、插座、冷媒管定位,避免洗衣机压地漏,热水器压插座,空调冷媒管无路由;
②排水立管设置于内侧墙角,管中心距完成面宜为100mm,地漏平行客厅墙垛安装。
③洗衣机插座距内侧墙体300mm,太阳能插座与之密拼安装,底部离地1500mm,配置防溅盒。
④洗衣机龙头距内侧墙体500mm,太阳能冷热水角阀设于空调龛外墙内侧,居中安装,距地均为1100mm。
⑤水电点位的定位尺寸详见上图,距墙边的标注尺寸均以完成面为准。
问题照片:

深化要点:
①在图纸会审阶段应重点审查非标层的差异化,重点关注首层厨房、阳台,是否存在开门赠小院现象,极容易出现功能性错误;
②若首层阳台出现开门赠小院现象,则统一将给排水、电气插座移至开门反方向一侧,避免出现功能性缺陷。
③若厨房出现开门赠小院现象,则根据现场情况,通知设计做相应调整,避免出现管道与门口冲突。
问题照片:


大墙垛做法(左)空调吃阳台做法(右)
带循环装置深化图
深化要点:
①灯具:客厅灯具纵横居中布置,餐厅灯具设于餐桌正中上方,距边墙宜为1200mm;
②客厅插座:客厅沙发两侧插座分别距墙两端300mm,避免家具遮挡,底边距地300mm;电视墙强弱电插座与客厅灯具对中安装,距地850mm;空调插座距侧墙≥200mm,距地300mm。
③餐厅插座:与灯具对中安装,距地300mm。
④水电点位的定位尺寸详见上图,标注尺寸均以完成面为准。
问题照片:


照片参考:
客厅沙发两侧、客厅电视侧
客厅空调侧、餐厅侧
深化要点:
①灯具:主人房、父母房灯具与床中线对齐,中心正对床尾部,距床头侧墙宜为2000mm;女孩房、男孩房、多功能房的灯具以房间中心定位。
②床头柜插座:主人房床头柜插座间距≥2400mm,父母房床头柜插座间距≥2100mm,且应避开衣柜宽度(600mm),距侧墙宜为900mm,距地均为750mm。
③电视插座:与卧室灯具对中安装,距地850mm。
④书桌插座:距侧墙宜为200mm,距地850mm。
问题照片:
照片参考:
床头侧
床头侧
电视侧
书桌侧
深化要点:
①灯具开关面板:所有房间的照明灯具开关面板距地均为1300mm,面板中心距门洞边(抹灰面)均为150mm,其它功能开关面板依次并排密拼安装。
②小夜灯:底边距地300mm,与照明主开关上下垂直安装。
问题照片:



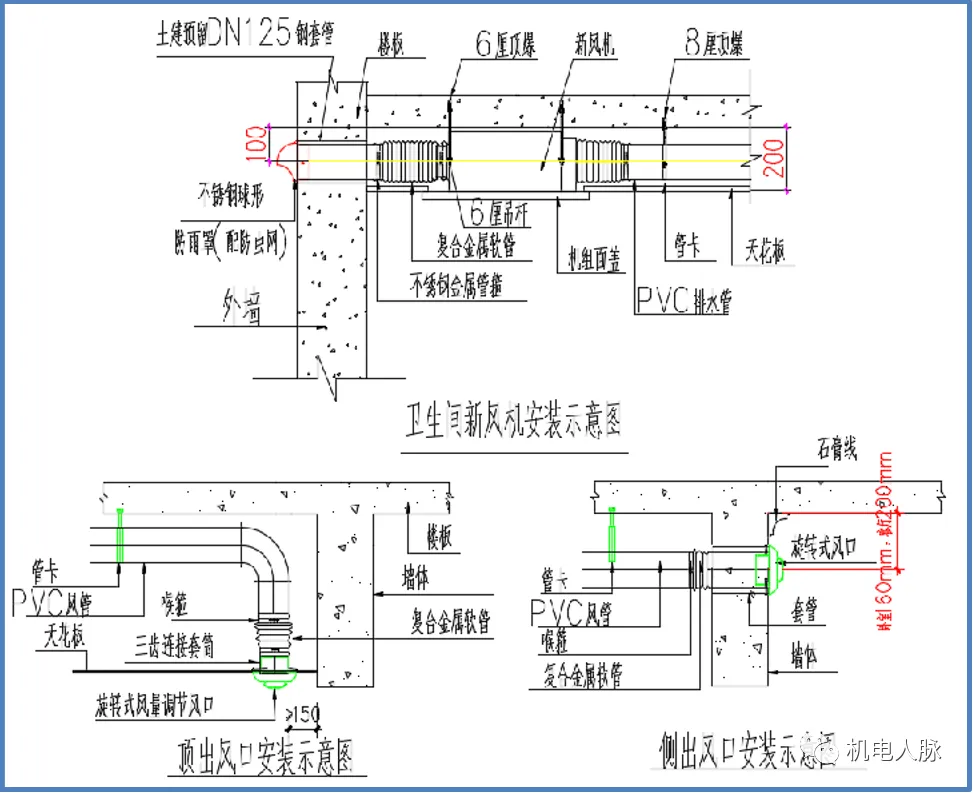
深化要点:
①卫生间:新风套管应满足新风机贴顶板安装,高度控制在板下200mm范围内,并避开浴霸灯具安装位置,套管中心距顶板宜为100mm。
②卧室、餐厅新风口:居门洞正中上方,套管中心距板下宜为160mm。
③客厅新风口:设置在玄关通道正中,侧出风口套管中心距板下宜为200mm,顶出风口距梁边≥150mm。
问题照片:



照片参考:

新风机、新风口标高、位置效果图
深化要点:
①消防箱报警按钮的位置,必须在主体结构施工前进行定位优化,根据消防箱的规格、安装高度定位合理安装,要求位置准确。
②明装消防箱,报警按钮接线盒预留在箱体的左上角背面接入,箱体背面进线(详见上图)。
③暗装消防箱,电源线管在消防箱左上角顶部接入,连接部位采用专用杯梳接头,严禁采用PVC管或黄腊管直接进入,箱体内部电线采用金属软管保护连接。
问题照片:



深化要点:
①楼梯间、电梯前室的照明灯具居中布置,消防烟感与灯具沿着长边方向呈直线布置,间距500mm。
②电梯前室的消防手报与消防广播、声光报警器上下垂直布置,消防手报距地1300mm,距门边宜为300mm,消防广播与声光报警器距地2400mm,如同时存在可并排安装。
③应避免与瓷砖缝冲突,结构施工前必须做好点位优化。当墙砖2.4m以上为涂饰面时,消防广播与声光报警器应下调100mm,距地为2300mm,避免出现阴阳底盒。
问题照片:



深化要点:
①公区防火门监控器是消防验收的必备条件,不得缺失。且信号线路必须采取导管暗敷。
②防火门监控器应安装在防火门开启一侧,点位预埋距门边宜为200mm,且以防火门定位的门框宽度取中埋设,严禁导线裸露敷设。
③导线敷设应在门框安装之前完成,避免穿线困难。
问题照片:



深化要点:
①安全出口:应以门洞口取中安装,盒底距门洞顶部100mm。
②疏散指示:应优化至楼梯间休息平台中部,盒底距地面500mm。
③安全出口与疏散指示采购下单时,应全部选择后出线方式,严禁出现电线裸露现象。
问题照片:
楼梯平台
电梯前室
灯具与烟感、手报与广播、安全出口
2020年灯具开关备案表
疏散指示