

施工原则:H为插座底边距完成面高度。插座底盒不应跨砖缝,底盒边缘距砖缝不应小于20mm

深化要点:
①所有底盒应避开柜体隔板,禁止跨砖缝安装;
②油烟机插座避开油烟机位置,标高如图;
③台面备用插座距离燃气管道大于 300mm,禁止设置燃气灶、洗菜盘正上方,标高要统一;
④分集水器温控阀电源底盒必须在水管上方,与阀门就近原则设置;
问题照片:
照片参考:
抽油烟机插座
分集水器温控阀电源
消毒柜插座
备用插座
深化要点:
①所有底盒应避开柜体隔板,禁止跨砖缝安装;
②净水机插座距离水点大于300mm,距地400mm,必须安装防溅水盒,位置如图;
③冰箱插座距离侧边墙宜为 300mm,距地1300mm,且不吃砖缝;
④备用插座与冰箱插座在同一面墙时,距离冰箱插座宜为600mm整模数(300*600墙砖);
问题照片:


照片参考:
冰箱插座
净水机插座
深化要点:
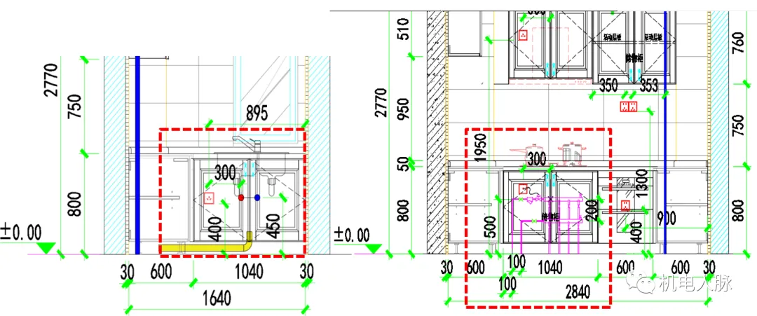
①洗涤盆冷、热水中心距地450mm,管中间距150mm,以洗涤盆柜体宽度左右取中定位。
②洗涤盆排水管预留接口以洗涤盆柜体宽度左右取中定位,管中心距背面墙150mm,管口高于橱柜 底板50~80mm,且排水水平支管严禁横穿厨柜侧板。
③分集水器必须根据厨柜深化图进行优化定位,分集水器连接管道一侧与灶台橱柜取中定位,供水管置于外侧,距侧板100mm,供、回水间距100mm,严禁出现横穿橱柜侧板。
④分水器距地500mm,集水器距地300mm。
问题照片:


照片参考:



深化要点:
①无吊顶厨房,排烟孔中心距顶板200mm,距油烟机背墙200mm。
②有吊顶厨房,排烟孔中心距顶板150mm,距油烟机背墙200mm。
③当燃气立管与排烟孔同侧安装时,排烟孔中心距背墙300mm,避免与燃气管冲突。交楼样板层施工时,应重点考虑。
④排烟孔规格:圆形孔为Φ160mm,方形孔为160*160mm。
问题照片:


照片参考:
有吊顶厨房
无吊顶厨房且有燃气管

深化要点:
①燃气入户管原则是从首层入户,管道严禁穿越门窗洞口,严禁与其它管道交叉。
②燃气入户后的管道应采用明装,且便于检修、美观。穿越厨房柜体部门应留设检修门措施。
③根据不同户型,对燃气管道定位进行合理优化,应避免出现管道与消毒柜、燃气灶、洗涤盆冲突(参考上图做法)。
④当燃气管从厨房顶部进入时,应考虑燃气管与排油烟风管的交叉避让,燃气管中距板底宜为350mm。
问题照片:
照片参考:
燃气管高位入户
支管卡选型
立管卡选型
主立管定位
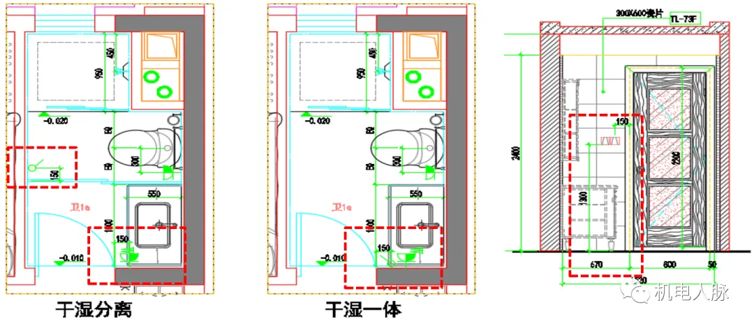
深化要点:
①插座防溅盒的选用根据卫生间干湿区布局正确选择,干区不带防溅盒,湿区应安 装防溅盒;
②插座应设于远离淋浴屏一侧;
③浴缸外沿600mm范围内不应设置插座,若有应设防水接线盒;
参考照片:



深化要点:
①卫生间照明开关、插座不得骑压砖缝,距砖缝应≥20mm;
②卫生间门口照明开关及插座高度一致,距地1300mm,照明开关面板中心距门洞边尺寸150mm, 备用插座面板与照明开关密拼安装。
③干湿一体卫生间,照明开关与备用插座均须安装防溅盒(结构预埋控制底盒间距15mm),干湿分离卫生间不需安装防溅盒。
④干湿分离卫生间浴霸的开关设置在推拉门内侧150mm,盒底距地1300mm。
问题照片:


一字型主卫:

一字型主卫:洗手台侧墙二三极备用插座与电热毛巾架三极插座使用功能合并,优化为在马桶上方布置一个二三 极备用插座,底部离地1.3m安装,智能马桶插座改为10A三级插座,底部离地0.4m(详见表一);
一字型次卫:

一字型次卫:取消洗手台侧墙二三极备用插座,优化为在马桶上方布置,底部离地1.3m安装,智能马桶插座改为 10A三级插座,底部离地0.4m (详见表二);
当一字型卫生间做延长镜柜时,洗手台侧墙备用插座安装位置不作调整;
照片参考:
干湿一体卫生间
干湿分离卫生间


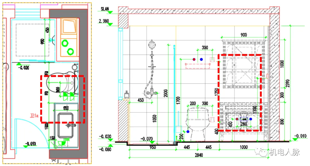
深化要点:
①智能马桶插座与电热水器插座不得骑压砖缝,距砖缝应≥20mm,且均须安装防溅盒。
②智能马桶插座与电热水器插座均设置在远离淋浴区一侧,距马桶中心300mm,上下垂直安装。
③智能马桶插座底边高度距地400mm,电热水器插座底边高度距地1650mm。
④马桶给水点距地200mm,面对马桶方向中心向左200mm;电热水器冷热水间距150mm,距地1700mm,以马桶中心垂直定位
问题照片:
照片参考:
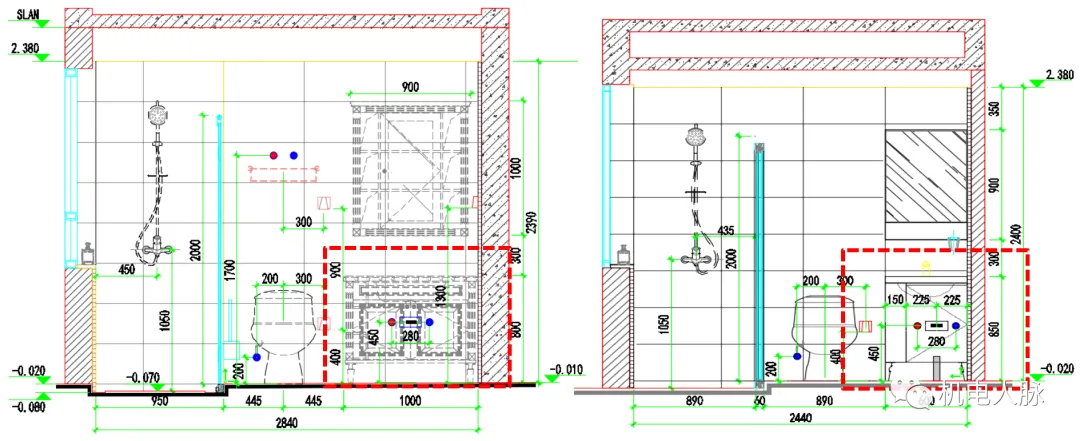
智能马桶水电点位
电热水器水电点位方案一(左)方案二(右)
深化要点:
①卫生间所有给水点位不得骑压砖缝,距砖缝应≥20mm。
②浴室柜冷热水点位中心水平间距280mm,中心距地450mm。
③等电位箱设置于冷热水点位中间,中心距地450mm。
④当浴室柜宽度等于600mm,且设置储物格时,冷热水及等电位中心距侧墙面225mm,无储物格时,以浴室柜取中定位;当浴室柜宽度大于600mm时,冷热水及等电位中心均以浴室柜取中定位。
问题照片:

