
老资料,供参考,文末提供下载

















解析:规范规定消防控制室宜设在高层建筑的首层或地下一层,为不损失商铺面积,尽量放置地下室


解析:1.底图以景观总图为准 2.把握时间次序 3.各配套单位图纸的汇总协调 4.变电站控制要求 5.示范区综合管线先行,成本控制,一次开挖。


解析:从土建施工阶段开始一次预埋,节省成本,方便施工。


解析:1.同时系数的考虑 2.LOFT等的复核 3.给排水暖通专业


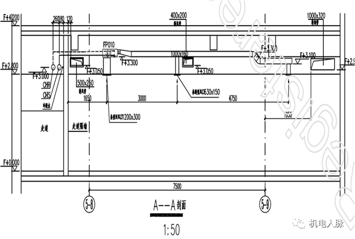
解析:碰到多管线集中在梁底布置时,首先选择管线平铺,如果宽度不够,可采用小管让大管道,有压管让重力管,其他管让风管原则,尽量抬高净高。如要求极高,更需事先与结构专业配合先行提资要求


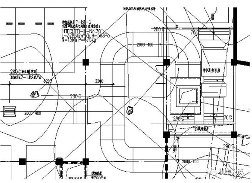
解析:1.避免教条主义 2.地下室通风系统和各类设备机房的排风优先考虑自然通风采光,其次优先采用排风与排烟共用系统。


解析:1.温度 湿度 新风 洁净度 2.安装成本 3.运营成本

解析:1.疏散指示照明及应急照明 2.弱电机房工程 3.桥架工程


解析:1.注意毛坯交付与精装交付之间的配置差异 2.注意规范的差异性

解析:目前泛光设计公司提供的图纸往往缺少对此部分的具体功能描述及设计,导致报价差异大,而且合约部无法核算工作量。


解析:1.业主投诉 2.检修困难 3.空调散热不畅百叶通风率大于80%


解析:争议 1.放置在庭院内,业主投诉,不方便检修 2.放置在路面,景观难看。

解析:电梯五方通话中的系统图由电梯厂商在中标后提供(不同的电梯系统拓扑结构不同);管线则有弱电总包完成。故因图纸确认出图较晚,存在施工交叉,容易遗漏。

解析:矿物绝缘电缆耐火性能好,但成本较高,不推荐使用。规范中也只是提到对一些重要建筑或场所内的供电线路或某些重要供电线路宜采用矿物绝缘铜护套电缆。

解析:办公楼不设计集中热水供应,为解决公共卫生间独立热水供应需求,宜采用独立热水器。
点击下载:http://app.mep-link.com.cn/EngineeringDataInfo.aspx?id=2976
