
最近在调研隔油提升装置采用国产品牌品质是否可保证,做了一些资料收集,并从箱底翻出了老同事做的分析,分享一下。
隔油提升装置是将餐饮含油废水中的杂质、油、水分离的一种专用设备。一般内部分为三个部分(固液分离,油水分离,污水提升),做到了油水自动分离功能,这种设备已经广泛应用于餐饮排污等场所。
在隔油器提升设备出现之前,传统的油水分离方法确主要使用隔油池。隔油池是利用油水密度差异和自然上浮原理,采用自然沉降的方法来分离油和水来实现油水分离的构筑物。


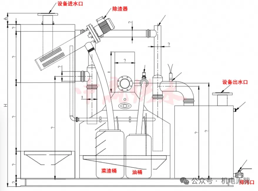
如果把砌筑隔油池的升级成不锈钢一体的就变成下面这个样式


随着技术的发展和环保要求的提高,现代的隔油器提升设备提供了更为高效、自动化的解决方案,能够更好地满足油水分离和环保排放的需求。

是一种集成了油水分离和废水提升排放功能的自动化设备。


这种设备通常具备以下功能特点:
自动过滤除渣:自动过滤拦截含油废水中的固体渣物,防止其进入水箱。
自动沉淀排渣:利用油水渣密度差,使油浮在水上,颗粒物沉淀在水下,可定期排渣,部分产品有自动螺旋除渣功能。
自动废油收集:通过增大油水分离区域和采用斜板式结构,提高油水分离速度,并收集废油。
自动恒温功能:设置有加热装置和温度传感器,保持适宜温度,防止油脂凝固22。
自动虹吸功能:利用虹吸原理,使污水不断进入蓄水池。
污水自动提升:采用双泵配置,一用一备,将污水提升排到市政管网。
系统密封运行:采用通气管、机房通风换气等方式,防止气味扩散,降低空气污染。


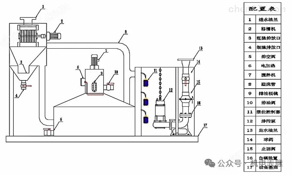
一般而言,污水提升设备通常由以下几个主要部分组成:
进水腔:用于接收来自污水源的废水,通常是开放式或者带有过滤网的腔室,以防止大颗粒物质进入设备。
粉碎腔(如果有):一些设备配备有粉碎装置,用于将较大的固体物质粉碎成较小的颗粒,以便于后续的处理和排放。
分离腔:用于分离废水中的固体颗粒和油脂。在某些设备中,分离腔可能进一步细分为沉淀腔和油水分离腔。
油水分离腔:利用油和水的密度差异,通过物理方法如斜板分离、气浮等技术,实现油水的有效分离。
沉淀腔:用于收集分离过程中沉积下来的污泥和固体颗粒,通常配有定期清理或自动排放的机制。
提升腔:装有提升泵,用于将处理后的废水提升至市政管网或其他指定排放点。
通风腔(如果有):用于设备的通风和气味控制,保持设备内部的空气质量。
出水腔:处理后的废水从这里排出,通常连接到提升泵或直接排入市政管网。
国产隔油提升设备在实际运行中可能会遇到多种问题,这些问题通常由以下几个原因导致:
水泵故障:水泵是隔油提升设备中的核心部件,国内很多厂家经常采用潜水泵提升,水泵放置在提升仓内,水泵长时间被油水混合液浸泡,容易损坏。采用外置泵则损坏机率会小很多。


堵塞问题:隔油设备可能会因为油脂、食物残渣等杂物堵塞而无法正常排水或排油。主要是固液分离做的不好,固体残渣大量进入油水分离仓。

生锈漏水问题:设备的连接部位或出水口可能因为密封不良或其他原因导致漏水。不锈钢品质不过关,焊接质量不好。

维护不当:如果设备没有得到适当的维护和保养,可能会导致性能下降或故障频发。设备环境潮湿,漏水,操作不当,长时间不使用不清洗等。

异味问题:隔油间可能因为油脂分解或固体残留物发酵腐烂产生异味。
主要为油水分离舱下面缺少自动排渣仓,即使最好的固液分离也会有一部分固体残渣进入油水分离舱,这个时候就需要做好残渣的沉淀定期排出,如果缺少这个功能就会造成残渣沉淀腐烂发臭。且大量残渣堆积会影响隔油设备的油水分离仓的容量,影响油水分离沉淀时间及容易堵塞排油、排水孔。


隔油提升一体化自动设备采购需严控品牌,品质,设备实现方式;可参照本文内容去把控筛选。
现在市场反馈较好的还是几个老的合资品牌如:亚科,科赛尔,TECE等,如果调查到好的国产品牌也会在留言区推荐给大家,也欢迎大家推荐。