
弯头托架
导向支架
固定支架
管道加肋板支撑
综合支架
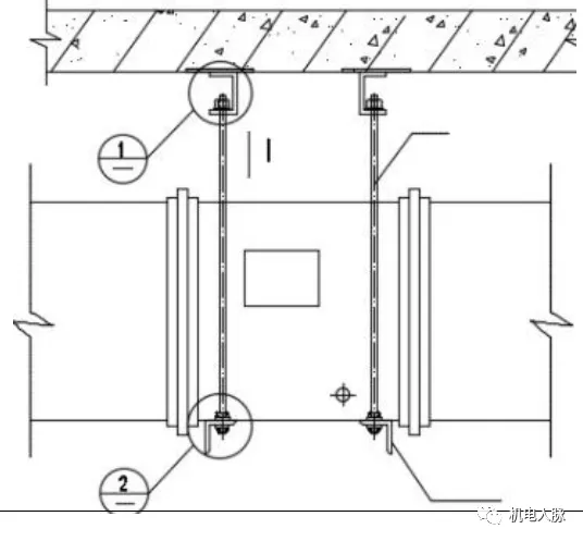
分集水器支架桥架母线支架
电缆桥架水平支架支架与螺帽间加设垫片;螺帽下端丝杆外露2-3丝;支架与桥架间用圆头螺栓固定。小于等于200mm中间一个,大于200mm在1/4处各设置1个。
电缆桥架垂直支架
母线支架与预埋铁件采用焊接固定时,焊缝应饱满,采用膨胀螺栓固定时,选用的螺栓应适配,连接应牢固。
强电竖井竖向桥架固定支架
① 水平桥架与竖直桥架之间连接设漏斗型管道支架倒角设置
支架倒角要经打磨处理,表面平整光滑,成45°
支吊架螺栓钻孔应该与螺栓大小一致。支架切割断面的毛刺应打磨清理,切割与钻孔部位均应防腐处理。
支架末端螺栓孔边缘距支架边缘距离为螺栓孔直径的2.5倍。

槽钢吊架下料采用45°角下料,两面切割,一面不切割煨弯至90°。

槽钢吊架45°角满焊焊接,焊缝饱满平直。采用煨弯,光滑无毛刺。

吊杆式吊架,槽钢受力面应为槽钢侧面;吊杆伸出螺帽长度为吊杆直径的1/2;应采用双螺帽,与槽钢接触处加平垫,有振动处除平垫外还应加弹簧垫。


支架锚固点应该尽量选择梁、柱上等结构承力好的部位。槽钢应居中,钢板方正、满焊。螺栓孔边缘距离钢板边缘距离为2.5倍螺栓直径。

单立管支架安装形式
钢板及角钢组合、朝向合理,明装立管单个支架高度以1.5~1.8米为宜。所有支架尖锐突出部位应倒角处理。立管卡子应固定牢固,尽量采用成品U型卡,增加接触摩擦力。

竖井多立管支架制作安装形式
支架、水管横平竖直,多根管道共用支架,管道之间间距均匀,为节 省空间尽量采用槽钢背靠背形成工字钢形式。

潮湿环境、明装部位的排水PVC管吊架外部套PVC塑料管。多个吊架应该在一条直线上。支架间距以最小管径管道间距为准。

在水流冲击力大的排水立管底部45°和90°短管部位设置顶托式支架。

立管固定支架安装形式
支架安装应平整牢固,有肋板加强处理;管道受力翼板焊接牢固,且管道与支架的保温空间充足;保温管道固定件与支架之间垫防腐木方,防止形成冷桥。



空调水管支架保温木托
1、空调水管保温木托应采用硬质木块进行沥青漆防腐;木托厚度应与保温层厚度一致;木托上下结合部位应无缝隙破损,避免结露;木托内径与管道外径一致。
2、木托扁铁抱箍下圆钢露出支架上部20mm以上,以保证抱箍不被扁铁顶住抱不紧;抱箍应紧贴木托,螺栓孔边缘距离木托边缘5mm。
3、机房、室外等潮湿部位落地支架应该进行根部保护处理。

成排管道支架细部做法
转角处有圆弧倒角措施,中间增设吊架有补强措施。

共用支架的设置应先根据最小管线确定支架的最小间距,再根据管线之间的间距(包括保温厚度)来确定支架宽度,应按每个支架的最大负荷来计算支架强度。
管道、风管共用支架安装形式
管道、桥架、风管共用支架安装形式槽钢共用支架的拼接方式
圆钢抱箍、管道、槽钢支架三者之间紧密相贴、固定牢靠,在槽钢中间吊杆两侧设加强肋

多根管道共用支架,管道之间间距均匀,支架抱箍处螺母下端丝杆长度统一为2-3丝

卡箍连接管道两端离卡箍350mm应对称设置吊架。管道拐弯、分支、首末端,以及超过一定长度应根据情况设置固定式或者防晃式支架。风管长度超过20米,空调水管超过30米,柔性铸铁排水管超过12米均应设置固定式或防止晃式支吊架。

多根管道共用支架时,为节省空间以及避免管道排布定位不正确采用 气割开孔问题,可采用槽钢双拼的方式。槽钢与槽钢断开连续焊固定,焊接缝间距15cm,焊缝10cm,中间留缝,便于管卡穿过。

管卡与槽钢间采用方垫片,避免松动。明装潮湿环境管卡螺栓头设圆头帽盖。

电气线管在有梁的部位均应该设置固定式管卡或吊架。利于穿线放线时线管牢固无位移

当水平悬吊的主、干风管长度超过 20m 时,应设置防止摆动的固定点,每个系统不应少于1 个;保温风管固定支架可采用扁铁抱箍,或者采用上部角钢横档,两侧丝杠与吊架下部横档螺栓固定方式

并排多组线路采用综合支吊架布置
槽钢、角钢支架朝向一致,支架间距分布与空间布置合理,错层或分开布置,布局结构紧凑,但也需留有足够的检修操作空间


落地支架加大对水泵进出口竖向管道的支撑
消防水泵进出水管道支架安装形式地面支撑架均设在水泵出口转弯处

空调水泵进出水管道支架安装形式、先固定、在考虑位移、再考虑减震

水泵进水口翻弯处采用落地支架进行支撑,支架采用法兰活连接,使管道有一定的收缩空间,起到减震的作用

跨越排水沟的支架安装方式采用圆弧形托架支撑阀门,支架与阀门接触面积较大,确保阀门的平稳,支架根部增加支墩,美观且使地面受力均匀
阀门支架设置形式风管转弯处增设支架进行支撑

沟槽弯头两端设立支架,避免沟槽配件卡箍连接处受力

管道转弯处两侧均设置支架,防止管道弯头处受力


水管、线管桥架等各类管道拐弯处两端应设置防晃式支架,在拐角45°处应设置吊架,避免放电缆后压弯下垂。

不锈钢管、铜管、塑料管、铸铁管与碳素钢支架接触处应该采用胶管与胶垫进行隔离。

空调冷冻水管固定支架应该选择有梁的部位设置,在门形吊架左右对称设置斜撑。

支吊架在制安过程常通过一些细部做法减少设备和管道的振动及引起的损坏
吊杆下端与角钢连接处用双螺母进行紧固,防止因风机振动,吊杆与角钢发生松动、滑脱。

风机支架处增设弹簧减振器支架上增加弹簧减振片,减少风机振动,竖直角钢之间通过水平角钢进行焊接,使支架不易变形。

橡胶减振器
弹簧减振器
阻尼器减振器
阻尼器减振器
空调机组下垫橡胶减振器
风机盘管管道加装弹簧减振器为防止风管晃动,在水平方向安装的风管长度不超过20m应设置固定支架

防火阀直径或边长尺寸≥630mm时宜设独立支吊架

管道弯头辅助支架安装


风机盘管安装样板

末端喷头必须设置支吊架,与喷头之间的距离为400mm。喷头竖向支管高度大于1000mm,应设置横向固定支架。

喷淋管道末端应采用梯形防晃支架,梯形支架角度为15°

风管下加装喷头的正确做法
风管下喷头应吊架采取管道延长至风管另外一端的方式设置。

当梁、通风管道、排管、桥架宽度大于1.2m时,增设的喷头应安装在其腹面以下部位。


伸缩节位置支、吊架安装形式
经过建筑物伸缩缝或桥架直线长度大于30m(铝合金及其它材料直线当桥架段长度大于15m时)应设置伸缩节间。伸缩节两侧各设置一个支架,支架与伸缩节端部距离不大于500mm。
风机、风阀吊架安装形式
风机吊架安装
防火、放排烟阀吊架安装金属支架或管卡与薄壁不锈钢管材间必须采用塑料或橡胶隔离,避免不锈钢管受到腐蚀。

吊架油漆与墙面颜色相协调。

支架和风管颜色保持一致。

空调水水管可共用一个门字型落地支架,上下两边进行分层固定。

给排水、消防设备管道可设门型落地支架。

屋顶风机重叠设置,充分利用空间。

补偿器固定支架
施工工艺:
1)本工程波纹补偿器端侧设置。
2)固定支架应设置于波纹补偿器非补偿侧,根据管径不同,距离补偿器400~1200mm。
3)固定支架应设置牢靠,有足够的纵向受力支撑。
质量控制:
1)补偿器安装方向应准确;
2)空调冷热水固定支架及滑动支架需要有足够的防冷桥措施;
3)滑动支架的滑块滑动范围应覆盖波纹补偿器的最大补偿量,以防支架脱落。


补偿器滑动支架
施工工艺:
1)本工程波纹补偿器端侧设置。
2)滑动支架应设置于波纹补偿器补偿侧,在补偿器一侧连续设置4付滑动支架,根据管径不同确定最大支架间距。
3)滑动支架抱箍与滑块之间焊接连接,固定牢固。
质量控制:
1)滑动支架的滑块长出支架横担宽度,保证滑动范围应覆盖波纹补偿器的最大补偿量,以防支架脱落;
2)滑动支架管托与管道间设置隔热管托,防止冷桥;
3)成品管托抱箍应拧紧,保证隔热管托与管道充分接触,有足够摩擦力。


机电工程各专业抗震支架安装范围
给排水专业:
公称直径≥DN65的给水、热水、消防给水管道及气体灭火管道。
暖通专业:
防排烟风道、事故通风风道及相关设备。
电气专业:
内径≥60mm的电气配管及重力不小于150N/m的电缆梯架、电线槽盒、母线槽。
