
管架的跨距的大小直接决定着管架的数量。跨距太小造成管架过密,管架数量增多,费用增高,故需在保证管道安全和正常运行的前提下,尽可能增大管道的跨距,降低工程费用。
但是管架跨距又受管道材质、截面刚度、管道其它作用何载和允许挠度等的影响,不可能无限的扩大。所以设计管道的支吊架应先确定管架的最大跨距。
根据相关规范规定的管道支吊架最大间距确定管道最大允许跨度,如《通风与空调工程施工质量验收规范》GB50243-2002
钢管道支、吊架的最大间距

本项目中设置的共用支架最大跨距为4.2m。
用来支撑管道的结构叫管道支吊架,管道在敷设时都必须对管道进行固定或支撑,固定或支撑管子的构件是支吊架。管道支吊架一般由管座、管架柱或管架吊杆(简称柱或吊杆)、管架梁(简称梁)和支撑节点组成。

1)垂直荷载
管道支吊架垂直荷载根据性质可分为基本垂直荷载和可变垂直荷载,其中基本垂直荷载指管道支吊架所承受的管道重力、介质重力、保温层等附件的重力等永久性荷载。
可变垂直荷载指管道所承受的活荷载、沉积物重力和发生地震时所应该承受的特殊变化的荷载。因可变垂直荷载是无法精确计算的,为此我们将管道支吊架的基本垂直荷载乘以一个经验系数(一般为1.2~1.4)作为管架垂直方向的计算荷载,本项目综合支吊架的计算中,经验系数取值为1.35。

管道支吊架基本垂直荷载计算,可先将复杂的管道支架体系近似的看作简支梁,根据受力分析,管架B所承受的基本垂直荷载为GB=(GL1+ GL2)/2.
因管道支吊架数量种类繁多,不可能一一计算,为此我们只需考虑同类型支架的最不利受力状况即可,根据管道支吊架的最大允许跨度来计算最不利支架,此时就只需计算长度为最大允许跨度L的管道、介质、保温层的重力G即可。
其重力方向的计算荷载为G=αGB(α=1.35)
2)水平荷载
管道水平方向的荷载是作用在管架上的水平推力,根据支架类型可分为活动管架上的水平推力和固定管架上的水平推力。
活动管架水平推力主要来自管道摩擦力,吊杆水平推力可忽略;
水平推力即为管道摩擦力f=μG (μ为摩擦系数,G为管道垂直荷载)
根据以上管架的受力分析,现以许昌万达广场项目负一层13-14/E轴的综合支吊架进行分析计算。
如下图所示,现有3根DN150的消防水管,管材为镀锌钢管Φ168.3*4.5;4根DN100的供暖管道与热风幕管道,管材为焊接钢管Φ114.3*4.0;2根DN200的空调水管,管材为无缝钢管Φ219*6。

根据规范,因DN100的管架最大跨距为5m。本项目中设置的共用支架最大跨距为4.2m,由此根据最不利情况支架间距为4.2m分析管架的受力。
1)DN100单根管道作用在管架上的计算荷载
DN100单根管道垂直方向上的基本荷载(支吊架间距为4.2米)
钢管自重=0.0246615×(114.3-4)×4×9.8×4.2×1.1=491.63N≈492N
保温重量=45×(0.1143+0.05)×3.14×0.05×9.8×4.2×1.1=52.56N≈53N
介质重量=1000×(0.1143-0.004×2)²×3.14/4×1.1×9.8×4.2=401.6N
单根管段的计算荷载=(钢管重量+保温重量+介质重量)×1.35(考虑35%的可变荷载)
单根DN100热水管道计算荷载 G100=(492+53+401.6)×1.35=1277N
2)DN150单根管道作用在管架上的计算荷载
DN150单根管道垂直方向上的基本荷载(支吊架间距为4.2米)
钢管自重=0.0246615×(168.3-4.5)×4.5×9.8×4.2×1.1=821N
介质重量=1000×(0.1683-0.0045×2)²×3.14/4×9.8×4.2×1.1=902N
单根管段的计算荷载=(钢管重量+介质重量)×1.35(考虑35%的可变荷载)
单根DN150冷水管道计算荷载 G150 =(823+902)×1.35=2326N
3)DN200单根管道作用在管架上的计算荷载
DN200单根管道垂直方向上的基本荷载(支吊架间距为4.2米)
钢管自重=0.0246615×(219-6)×6×9.8×4.2×1.1=1425N
保温重量=45×(0.219+0.036)×3.14×0.036×9.8×4.2×1.1=59N
介质重量=1000×(0.219-0.006×2)²×3.14/4×1.1×9.8×4.2=1524N
单根管段的计算荷载=(钢管重量+保温重量+介质重量)×1.35(考虑35%的可变荷载)
单根DN200冷水管道计算荷载 G200=(1427+59+1524)×1.35=4061N
水平方向的载荷:按垂直荷载的0.3倍计算。
1)单根DN150冷水管道的水平推力 F150=0.3×G150=0.3×2326=698N
2)单根DN100冷水管道的水平推力 F100=0.3×G100=0.3×1277=383N
3)单根DN200冷水管道的水平推力 F200=0.3×G200=0.3×4061=1218N

根据管架梁的受力分析,管架梁在管道重力下或在管道推力作用下,有可能出现2种现象,一是管架梁会沿着受力方向被剪断,另一种是管架梁会沿着受力方向发生过大弯曲变形,严重的会发生弯曲折断。
所以合理的选择管架梁就是使管架梁能刚好满足梁的抗弯和抗剪要求。
1)管道支吊架内力分析
将管架假设为刚性结构的简支梁,分别根据管架梁的垂直受力和水平受力情况,按照平面简支梁进行内力分析,并根据静力方程求得管架梁的内力,并绘制梁的剪力图和弯矩图,求出最大剪力和最大弯矩。


经过受力分析得到管架梁垂直方向的最大弯矩为2671.6N·m,最大剪力为6976N。管架梁水平方向的最大弯矩为607N·m,最大剪力为1382N
4.4 管道支吊架选型计算
1)管道支吊架抗弯强度计算
管道支吊架的最大弯矩计算得出后,根据以下公式对管道支吊架的材料规格型号进行选择:

采用验算法将初步估计型钢规格所对应的截面系数代入以上公式进行验算,满足该方程的型钢可作为管道支吊架的备选材料。依据管架梁的最大弯矩,对管架梁的材料进行选型:

由管道支吊架选型计算表得出,均满足弯矩承重要求,因槽钢12#的比重最小,从经济方面暂定槽钢12#制作管道支吊架。
2)管道支吊架抗剪强度校验
根据管道支吊架的抗弯强度计算所选出的支架,还需检验其是否满足剪切要求。参照如下公式对管道所承受的剪力进行校验。


故该槽钢满足抗剪要求,所以管道支吊架采用槽钢10#。

根据管架的受力分析,为满足管架所受管道重力和水平推力的平衡,管架柱给予管架梁一个支反力来维持管架及其上各管道的平衡。根据管道支架的支反力 对管架柱进行选型。根据分析,管架柱的受力有2个,一个是垂直方向的拉力(或 压力),另一个是水平方向的推力。
1)管架柱的横截面计算公式
S≥1.5R/(0.85σ)
式中S为管架柱的最小截面积,R为管架柱竖直方向的拉力或压力,σ 为钢材的抗拉强度,一般型钢钢材取210MPa
所以以上示例中管架柱的最小横截面积为:
S=1.5×6976/(0.85×210)=58.6mm²≤15.69cm²
2)管架柱弯曲计算

所以以上示例中管架柱的最小截面系数为
W=1.5×1382×1.08/(0.85×1.05×210)=12cm3≤62.1cm3
查型钢规格表,使所选择的型钢横截面积大于58.6mm2,同时其截面系数又必须大于12cm3,我们为了管道支架的整体协调,管架柱也和管架梁采用同规格 的槽钢12#。
1)锚栓受力分析
管道支吊架自重:(3.15*12.318+3*1.08*12.318)*9.8=771.4N
管道支吊架垂直方向上最大的剪力6976N。
2)锚栓的直径相同,假设每个锚栓的受力相等,所以单个锚栓的受力为 P/4。

3)锚栓规格及极限荷载表

4)膨胀螺栓受力性能表

查化学锚栓规格及极限荷载表,选用4个M10的高强度化学锚栓。
本项目中采用4个M14的高强度化学锚栓或4个M14的膨胀螺栓。
根据膨胀螺栓的检测报告,每个14的膨胀螺栓的抗拉为33.5KN,故14#膨胀螺栓满足要求。
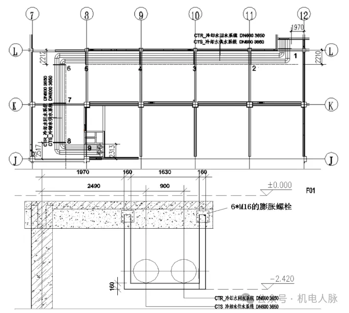
根据规范,因DN600的管架最大跨距为10.5m。本项目中设置的管道支架最大跨距为8.4m,由此根据最不利情况支架间距为8.4m分析管架的受力。
DN600单根冷却水管道垂直方向上的基本荷载(支吊架间距为8.4米)
钢管自重=0.0246615×(630-10)×10×9.8×8.4×1.1=13817.45N≈13820N
介质重量=1000×(0.63-0.010×2)²×3.14/4×1.1×9.8×8.4=26450N
单根管段的计算荷载=(钢管重量+介质重量)×1.35(考虑35%的可变荷载)
单根DN600冷却水管道计算荷载G600 =(13820+26450)×1.35=54362N
水平方向的载荷:按垂直荷载的0.3倍计算。单根DN600冷却水管道的水平推力G =0.3× G600=0.3×54362=16310N

根据管架梁的受力分析,管架梁在管道重力下或在管道推力作用下,有可能出现2种现象,一是管架梁会沿着受力方向被剪断,另一种是管架梁会沿着受力方向发生过大弯曲变形,严重的会发生弯曲折断。所以合理的选择管架梁就是使管架梁能刚好满足梁的抗弯和抗剪要求。
1)管道支吊架内力分析
将管架假设为刚性结构的简支梁,分别根据管架梁的垂直受力和水平受力情况,按照平面简支梁进行内力分析,并根据静力方程求得管架梁的内力,并绘制梁的剪力图和弯矩图,求出最大剪力和最大弯矩。


经过受力分析得到管架梁垂直方向的最大弯矩为27181N·m,最大剪力为 54362N。管架梁水平方向的最大弯矩为8155N·m,最大剪力为8584N
本项目两根DN600的冷却水管的支吊架选用16#槽钢,每边采用6个16#的膨胀螺栓。
2)管道支吊架自重:(1.95*19.752+2*1.85*19.752)*10=1116N
3)膨胀螺栓的直径相同,假设每个膨胀螺栓的受力相等,所以单个膨胀 螺栓的受力为P/6。
则:Q= P/6 =(1116+54326)/6=9240N=9.24KN<19.4KN
根据膨胀螺栓的受力性能表得出,16#的膨胀螺栓满足要求。
其他同类型的综合支吊架经过以上相同的计算步骤核算之后,最后确定综合支吊架所选用的钢材的型号、膨胀螺栓的规格均满足要求。具体的规格尺寸详见综合支吊架图纸。