
母线槽支架安装应符合下列规定:
1.除设计要求外,承力建筑钢结构构件上不得熔焊连接母线槽支架,且不得热加工开孔。
2.与预埋铁件采用焊接固定时,焊缝应饱满;采用膨胀螺栓固定时,选用的螺栓应适配,连接应牢固。
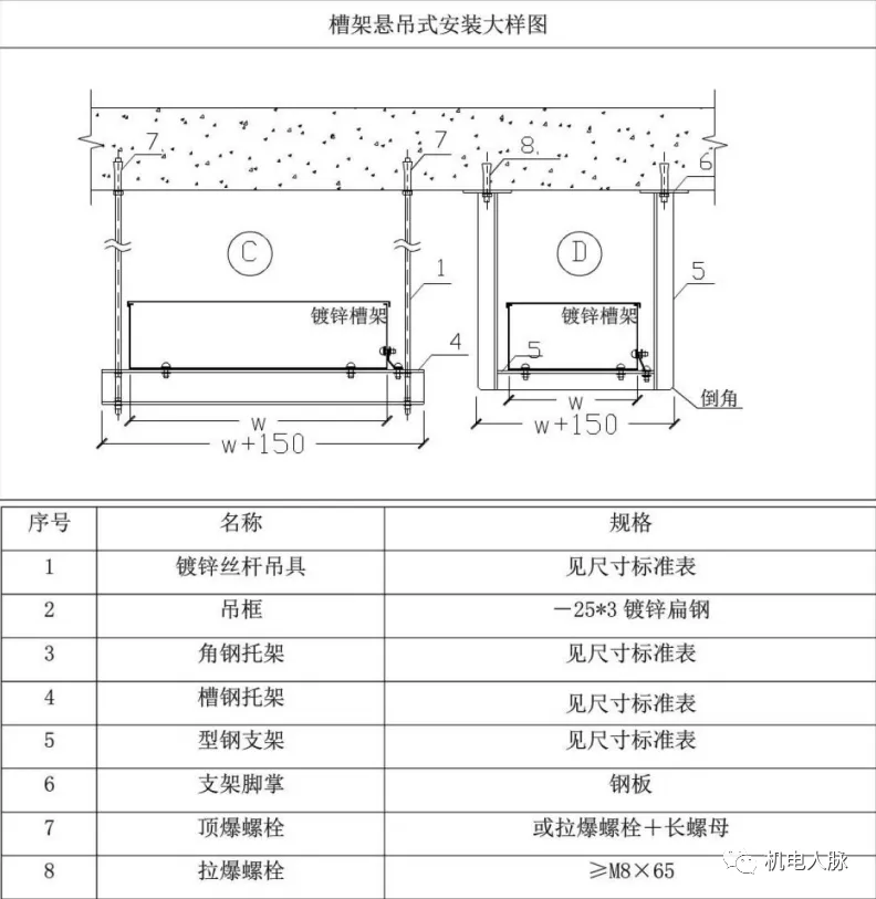
3.支架应安装牢固、无明显扭曲,采用金属吊架固定时应有防晃支架,配电母线槽的圆钢吊架直径不得小于8mm;照明母线槽的圆钢吊架直径不得小于6mm。
4.金属支架应进行防腐,位于室外及潮湿场所的应按设计要求做处理。
母线槽安装应符合下列规定:
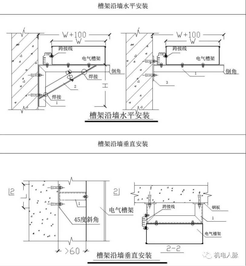
1.封闭插接母线的拐弯处距拐弯0.4m~0.6m处应设置支架,固定点位置不应设置在母线槽的连接处或分接 单元处。与箱(盘)连接处以及末端悬空时必须加支架,水平敷设插接母线支架的距离不大于2m,垂直敷设 的插接母线支架距离不大于3m。吊架用双螺母夹紧
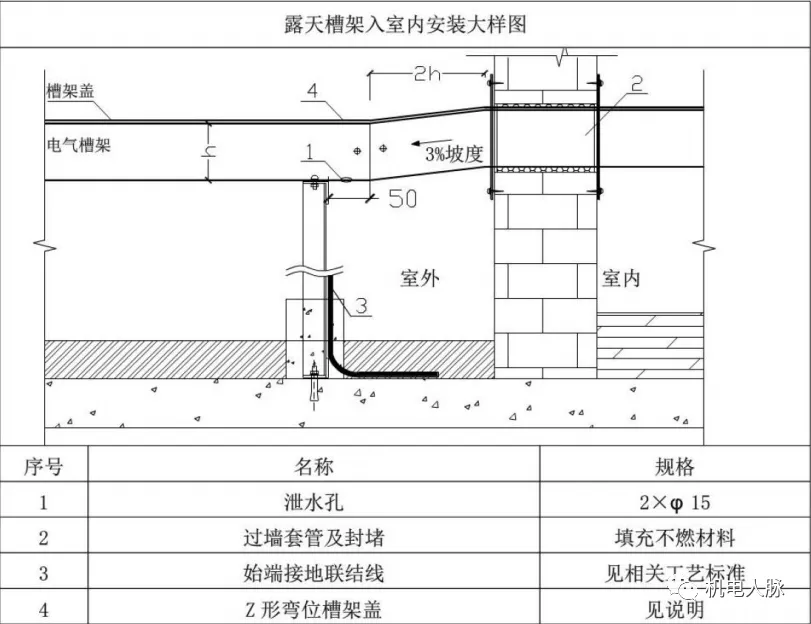
2.母线槽段与段的连接口不应设置在穿越楼板或墙体处,垂直穿越楼板处应设置与建(构)筑物固定的专用部件支座,其孔洞四周应设置高度为50mm及以上的防水台,并应采取防火封堵措施。
3.母线槽跨越建筑物变形缝处时,应设置补偿装置;母线槽直线敷设长度超过80m ,每50m~60m宜设置伸缩节。
4.母线槽直线段安装应平直,水平度与垂直度偏差不宜大于1.5‰,全长最大偏差不宜大于20mm;照明用母线槽水平偏差全长不应大于5mm,垂直偏差不应大于10mm。
5.母线槽上无插接部件的接插口及母线端部应采用专用的封板封堵完好。
6.母线槽不宜安装在水管正下方;
7.母线应与外壳同心,允许偏差应为±5mm;
8.当母线槽段与段连接时,两相邻段母线及外壳宜对准,相序应正确,连接后不应使母线及外壳受额外应力;
9.母线槽连接用部件的防护等级应与母线槽本体的防护等级一致。
10.外壳与底座间、外壳各连接部位及母线的连接螺栓应按产品技术文件要求选择正确、连接紧固。
11.母线槽上无插接部件的接插口及母线端部应采用专用的封板封堵完好。
12.母线槽与各类管道平行或交叉的净距应符合下表的规定。

当母线与母线、母线与电器或设备接线端子采用螺栓搭接连接时,应符合下列规定:
1.母线的各类搭接连接的钻孔直径和搭接长度及连接螺栓的力矩应符合规范的规定;当一个连接处需要多个螺栓连接时,每个螺栓的拧紧力矩值应一致。
2.母线接触面应保持清洁,宜涂抗氧化剂,螺栓孔周边应无毛刺。
3.连接螺栓两侧应有平垫圈,相邻垫圈间应有大于3mm的间隙,螺母侧应装有弹簧垫圈或锁紧螺母。
4.螺栓受力应均匀,不应使电器或设备的接线端子受额外应力。
当母线采用螺栓搭接时,连接处距绝缘子的支持夹板边缘不应小于50mm。
当设计无要求时,母线的相序排列及涂色应符合下列规定:
1. 对于上、下布置的交流母线,由上至下或由下至上排列应分别为L1、L2、L3;直流母线应正极在上、负极在下。
2. 对于水平布置的交流母线,由柜后向柜前或由柜前向柜后排列应分别为L1、L2、L3;直流母线应正极在后、负极在前。
3. 对于面对引下线的交流母线,由左至右排列应分别为L1、L2、L3;直流母线应正极在左、负极在右。
4. 对于母线的涂色,交流母线L1、L2、L3 应分别为黄色、绿色和红色,中性导体应为淡蓝色;直流母线应正极为赭色、负极为蓝色;保护接地导体PE应为黄绿双色组合色,保护中性导体 (PEN)应为全长黄-绿双色、终端用淡蓝色或全长淡蓝色、终端用黄-绿双色;在连接处或支持件边缘两侧 10mm 以内不应涂色。
母钱槽的金属外壳等外露可导电部分应与保护导体可靠连接,并应符合下列规定:
1. 每段母线槽的金属外壳间应连接可靠,且母线槽全长与保护导体可靠连接不应少于2处;
2. 分支母线槽的金属外壳末端应与保护导体可靠连接;
3. 连接导体的材质、截面积应符合设计要求。

金属梯架、托盘或槽盒本体之间的连接应牢固可靠,与保护导体的连接应符合下列规定:
1.梯架、托盘和槽盒全长不大于30m时,不应少于2处与保护导体可靠连接;全长大于30m时,每隔20m~30m应增加一个连接点,起始端和终点端均应可靠接地。
2.非镀锌电缆桥架间连接板的两端跨接铜芯接地线,接地线最小允许截面积不小于4mm2。镀锌电缆桥架间连接板的两端不跨接接地线的,则连接板两端不少于2个有防松螺帽或防松垫圈的连接固定螺栓

电缆梯架、托盘和槽盒转弯、分支处宜采用专用连接配件,其弯曲半径不应小于梯架、托盘和槽盒内电缆最小允许弯曲半径,电缆最小允许弯曲半径应符合下表的规定。

金属支架应进行防腐,位于室外及潮湿场所的应按设计要求做处理。
当设计无要求时,梯架、托盘、槽盒及支架安装应符合下列规定:
1. 电缆梯架、托盘和槽盒宜敷设在易燃易爆气体管道和热力管道的下方,与各类管道的最小净距应符合下表的规定。

2. 配线槽盒与水管同侧上下敷设时,宜安装在水管的上方;
3. 与热水管、蒸气管平行上下敷设时,应敷设在热水管、蒸气管的下方,当有困难时,可敷设在热水管、蒸气管的上方;相互间的最小距离应符合下表规定。

4. 敷设在电气竖井内穿楼板处和穿越不同防火区的梯架、托盘和槽盒,应有防火隔墙措施。敷设在电气竖井内的电缆梯架或托盘,其固定支架不应安装在固定电缆的横担上,且每隔3层~5层应设置承重支架。

5. 对于敷设在室外的梯架、托盘和槽盒,当进入室内或配电箱(柜)时应有防雨水措施,槽盒底部应有泄水孔。
6. 承力建筑钢结构构件上不得熔焊支架,且不得热加工开孔。
7. 水平安装的支架间距宜为1.5m~3.0m,垂直安装的支架间距不应大于2m。

8. 采用金属吊架固定时,圆钢直径不得小于8mm ,并应有防晃支架,在分支处或端部0.3m~0.5m处应有固定支架。
当直线段钢制长度超过30m,铝合金或玻璃钢制梯架、托盘和槽盒长度超过 15m时,应设置伸缩节;当梯架、托盘和槽盒跨越建筑物变形缝处时,应设置补偿装置。
梯架、托盘和槽盒与支架间及与连接板的固定螺栓应紧固无遗漏,螺母应位于梯架、托盘和槽盒外侧;当铝合金梯架、托盘和槽盒与钢支架固定时,应有相互间绝缘的防电化腐蚀措施。











