
在炎热的夏日,当您步入一栋商业综合体建筑之内,首先感受到的往往是凉爽的空气。这背后是一套高效、先进的空调机房在默默工作。接下来,我们将带领您从布局就位、设计选型及色彩标识三个方面独辟蹊径的解读一个整体效率5.9的高效机房案例。在这篇文章中,我们将深入探讨如何改造高效机房,使其更加高效和可靠。
顾客体验:对于商业综合体来说,提供舒适的购物环境至关重要。一套有效的空调系统确保了顾客在购物时的舒适度。
节能与环保:在经济与环保之间找到平衡是每座商业综合体的责任。高效的空调机房可以大大节约能源,同时降低碳足迹。
运营成本:通过优化机房布局和设备,可以有效降低运营和维护成本。
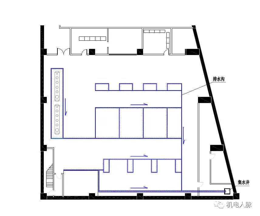
1.巡视:常规巡视是确保设备正常运行的关键。通道应该宽阔,确保无任何障碍物,以便于进行常规检查;

2.操作:为了确保操作的流畅性,所有设备都应该清晰标识并附有操作说明,使得操作人员可以迅速找到并使用设备;

3.维修:维修通道应设计的尽可能直接,以减少设备停机时间,并确保快速、高效的维修。
4.参观:为了安全和效率,参观通道应与主操作区域分开,确保不会干扰日常操作。

1.观察窗:观察窗是观察室的核心。超大观察窗(玻璃3m*1.5m)为操作人员提供了无死角的全景视角。双层中空设计确保了隔音和隔热,使得观察室内环境始终保持舒适;

2.主机配电控制间与水泵配电控制柜相邻:此设计方便于管理和监视,确保系统的稳定运行。

1.集水井:机房内的集水井能够有效地处理大量的集水问题,确保机房的设备始终处于安全的环境中;

2.坡度:为确保水的排放有效流动,机房的地面设计有一定的坡度,设备周边设置了排水沟。控制室和配电间均位于最高点,以防积水造成的安全隐患机。

考虑到大型设备的日常维护和日后更换,主机上方和水泵上方分别设置了维修轨道吊和吊点,确保维护工作迅速而高效。

照明在机房中扮演着至关重要的角色。设备区域采用6000K的LED超亮工矿灯,而辅助区域采用3000K的LED连续灯带,确保工作人员能够清晰地看到每一个细节。

经过深入的调研和计算,我们决定将原机房中的5台主机减为4台。选用4台特灵高效三级压缩离心式冷水机组,旨在提高每台主机的使用效率,同时也为机房提供更多的空间,使得运维动线更为顺畅。

“骆驼穿针眼之艺术”大型主机在狭窄通道的解体、搬运与再组装。对于大型主机的安装,尤其是在有限的空间内,这是一次技术与策略的完美结合!
解体:我们选择将主机拆解,这样每个部分都可以更安全地通过狭窄的通道。
坡道托运:面对坡道带来的挑战,我们采取了一系列特殊措施和技术。虽然坡道可能会增加移动的难度,但我们的团队通过专业的协作和技巧,成功地确保了每个部分稳定、安全地通过坡道,顺利地将主机运输到指定位置。
转体下降:这是一个复杂的步骤,需要确保主机部分在有限的空间内旋转并安全下降。

平移转向:在主机部分到达指定位置后,我们使用平移转向技术,确保他们准确对齐就位。
组装完成:经过上述各个步骤,主机在机房内完美组装,确保其高效稳定运行。
为了满足商业综合体的制冷需求,我们选择了冷冻卧式离心和冷却双吸泵作为主要的水泵形式。
一机一泵:这种配置确保了机组的流量分配更均匀,使每台机组的运行效率都保持在一个高效的范围,同时管路更简洁,管件更少。

变频:通过使用变频技术,我们能够确保水泵的运行更加节能,同时也能够满足不同时间和不同区域的制冷需求。
顺流弯处理:我们特意设计了顺流弯处理,这样可以确保水流更加顺畅,减少阻力。

大半径管件:使用大半径管件可以有效减少水流的阻力,从而提高系统的运行效率。
多功能控制阀:这是一个综合性的管件设计,它具有止回、开关、流量调节等功能,同时它还旨在简化安装过程,提高效率。

扩散器:这种扩散器综合了过滤器、弯头、端吸稳定器等作用,它的阻力只有Y型过滤器阻力的1/3,在有效滤过水中细小杂物的同时,保证了系统的高效运行。

为了确保管道的高品质和长寿命,我们的管道均采用工厂预制,表面均经过热镀锌处理。

对于机房,人们通常认为它只是一个“冷硬”的功能性很强的空间,但我们不这么认为。本次我们尝试了一种全新的设计思路,将功能与美感结合,让机房成为一个充满艺术感的工作场所!
在我们的新设计中,您会发现使用了不同颜色的地砖来标识功能区与非功能区。为了进一步突出这种划分,我们选择了醒目的黄色来标记区域的边界、设备的边缘以及其他可能发生碰撞的区域。这种选择不仅增强了视觉上的识别度,还起到了警示作用,确保了工作的安全性。


冷却系统采用醒目的绿色,代表了生机与清凉。与此相对,冷冻系统选用了宁静的蓝色,体现了冷静与稳定。热水系统使用了充满活力的橙色,为机房带来了温暖的氛围。
保温管道采用赢胜U-PVC壳宝外保护。这种外保护具有耐强酸强碱,抗紫外线和老化,使用寿命长;导热系数低、阻燃性能高,防火性能佳;同时具有洁净美观,标识清晰,模块化程度高等优势。

所有的阀轮统一采用红色,强调了他们在紧急情况下的重要性,确保员工可以迅速找到并操作。

我们对所有标识进行了重新设计。管道的标识字体与其颜色相匹配,这不仅保持了机房的整体美感,而且大大提高了员工对管道的识别速速。
与此同时,机组的标识字体颜色与其品牌的标识颜色相一致,强化了我们对品牌的忠诚度,同时也使机房充满了现代感。

我们发现,通过这种大胆的色彩设计,机房的工作效率得到了明显的提高。研究表明,一个良好的视觉环境可以提高员工的工作情绪和效率。颜色不仅为我们提供了清晰的工作指引,还成为了机房的独特标识。当您走入这样的机房时,会立刻感受到我们对技术与艺术结合的热情。
在这个项目中,我们实践了一个观点:美感与功能并不是相互排斥的。相反,它们可以相辅相成,共同创造出一个既实用又美观的空间。我们的这次尝试证明了,即使是传统意义上的“冷硬”技术空间,也可以焕发出新的生命和色彩。我们期待未来有更多机会与大家分享我们的设计理念和成果。
